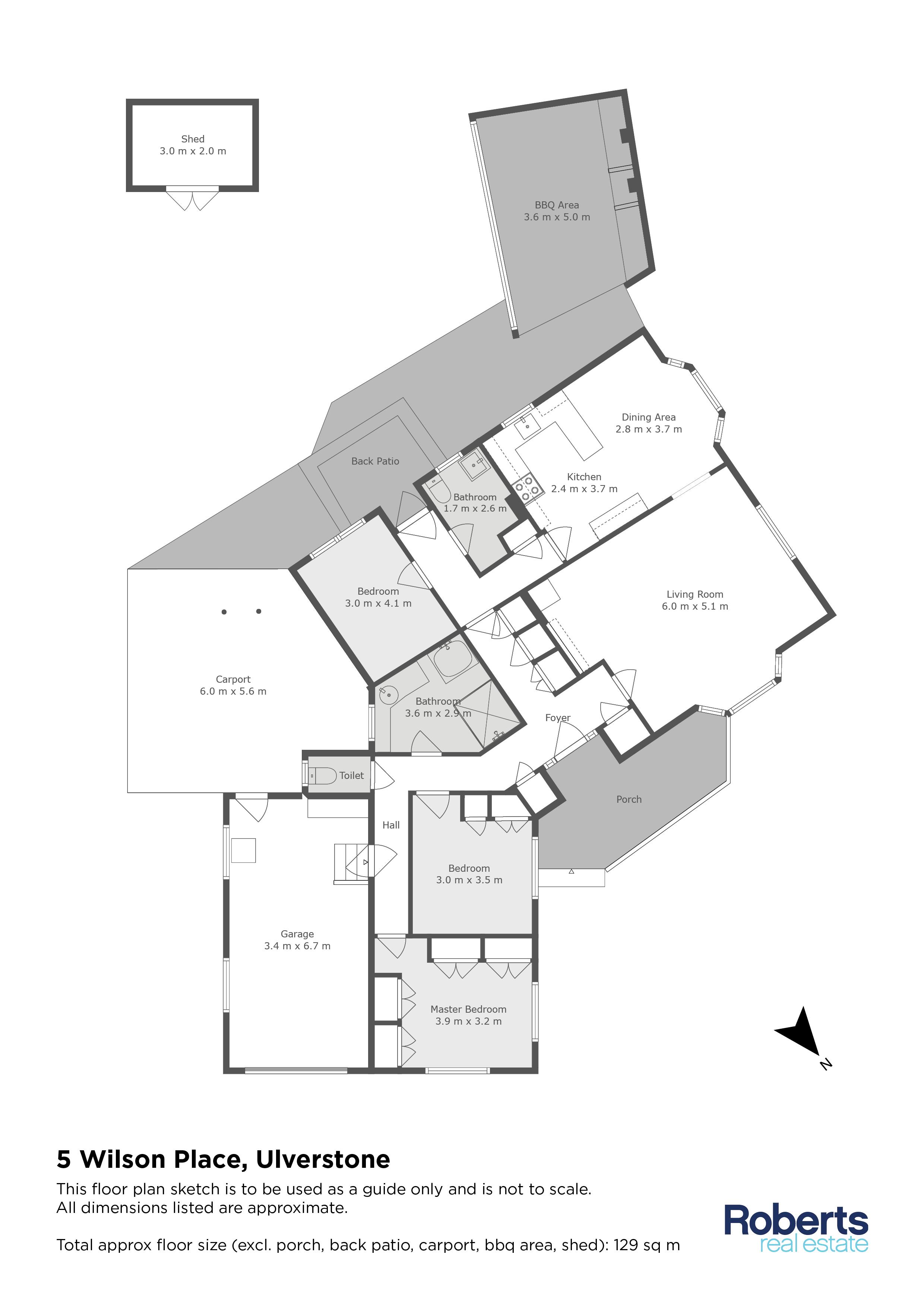
Perfect Central Location
Upon entry, be greeted by a sun-drenched lounge, inviting relaxation and warmth into your daily life. The home is thoughtfully designed with ample storage cupboards throughout, ensuring clutter-free living. The well-appointed bathroom features a large shower and a tub perfect for bathing the little ones, while the inclusion of two toilets enhances practicality and convenience.
The heart of the home, the kitchen, offers plenty of cupboards for storage and a breakfast bar for casual dining or entertaining guests. For added convenience, a large single garage with a remote-controlled door opener, workshop space, and internal access to the home ensures ease of living.
Step outside to discover an easy-care backyard oasis, complete with a covered barbecue area adorned with built-in seats, ideal for alfresco dining and entertaining. The low-maintenance garden area further enhances the appeal of this property, offering a tranquil retreat for reflection.
Perfectly positioned within a short and flat walking distance to the CBD, this home offers amazing convenience, allowing easy access to a myriad of amenities including shops, cafes, and recreational facilities. Don’t miss your chance to secure this exquisitely located residence – enquire now to arrange your inspection and experience the epitome of Ulverstone living.
“Roberts Real Estate have obtained all information in this document from sources considered to be reliable; however, we cannot guarantee its accuracy. Prospective purchasers are advised to carry out their own investigations. All measurements are approximate. Please note, photos are indicative of the property only.”

