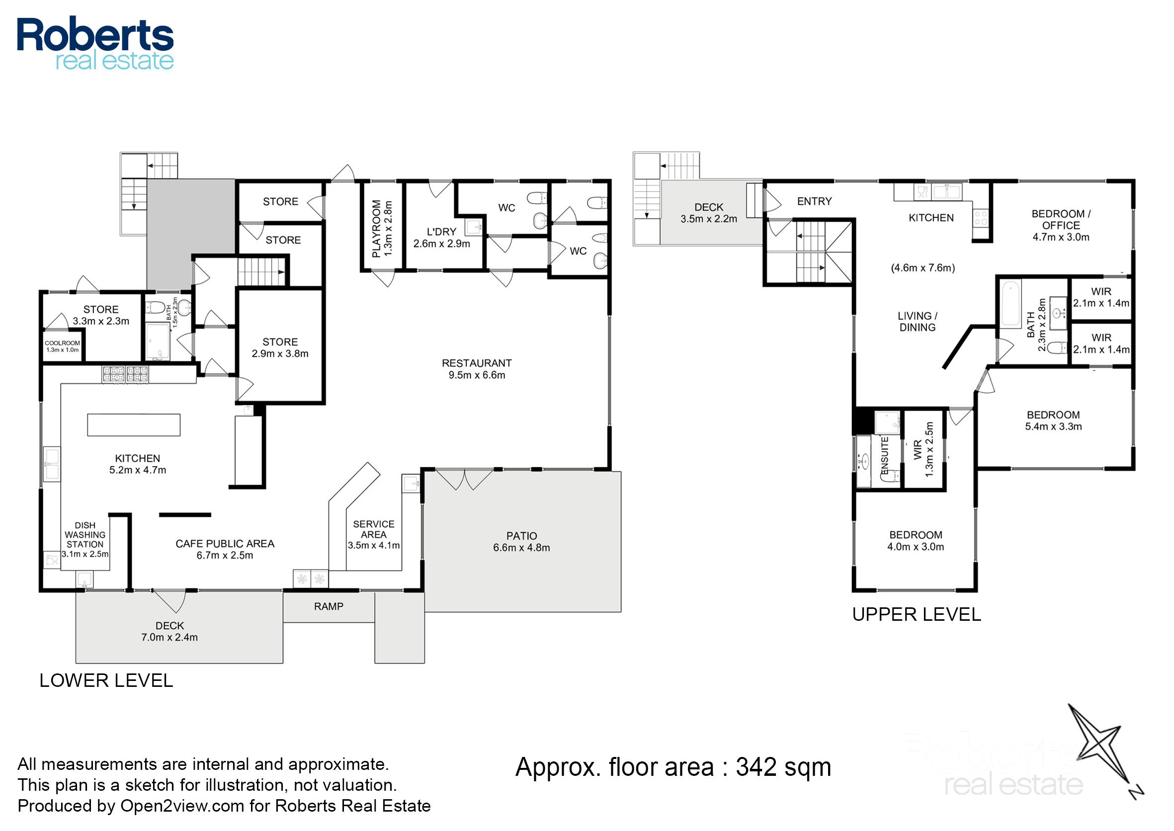
FREEHOLD - SEASIDE RESTAURANT + RESIDENCE + DEVELOPMENT POTENTIAL
Located just off the Tasman Highway in the booming seaside town of Swansea, and opposite two bustling motels, this fabulous property incorporates a large and well-equipped modern restaurant/café, a 3-bedroom 2-bathroom private residence and a huge carpark at the rear giving plenty of additional room to build, extend or develop in the future (STCA).
Available now as a vacant freehold purchase, the property offers:
Restaurant/Café (lower level)
– Huge fully equipped commercial kitchen
– All plant and equipment (full inventory available)
– Inside and outside dining approx. 50+ seats
– Private sheltered courtyard
– Children’s playroom
– Disabled toilet facilities
– Multiple storerooms
– Staff toilet & shower
– Ample on and off-street parking
– Approx. 30 metre street frontage
– Ocean views from inside and out
– Driveway access to rear
Private Residence (upper level)
– 3-bedroom, 2-bathroom, commercial kitchen
– Separate internal & external entrances
– Ocean, recreation ground and coastal views
– Ideal Manager’s residence, staff accommodation or holiday investment
Carpark/Land for Development
– Local business zoning allows for a multitude of development options! (STCA)
– Views over the recreation ground, golf course & Freycinet Peninsula
– Beach access to Waterloo Point & beach across the road
– Short walking distance to Golf Club, Bowls Club, Swansea Recreation Ground, corner store, hairdresser, Bendigo Bank, Post Office & all town facilities
– Ideal for residential or holiday unit investment with excellent demand
Additional information:
Year Built: 2006 approx
Land Size: 1401 sqm
Floor Area: Commercial approx. 216 sqm
Floor Area: Residential approx. 126 sqm
Council Rates: $4,192 pa approx.
Water Rates: $2,776 pa approx.
Municipality: Glamorgan-Spring Bay
Zoning: Local Business
For more information or to arrange an inspection please contact local agent Bianca Melling or Paul Whytcross at Roberts Real Estate East Coast.
Roberts Real Estate has made all reasonable efforts to obtain information regarding this property from industry and government sources that are deemed to be both reliable and factual; however, we cannot guarantee their complete accuracy in every instance. Prospective purchasers are advised to carry out their own investigations to ensure the property satisfies their suitability/usage requirements. All measurements are approximate.

