Amazing Shed with Low Maintenance Stunning Home
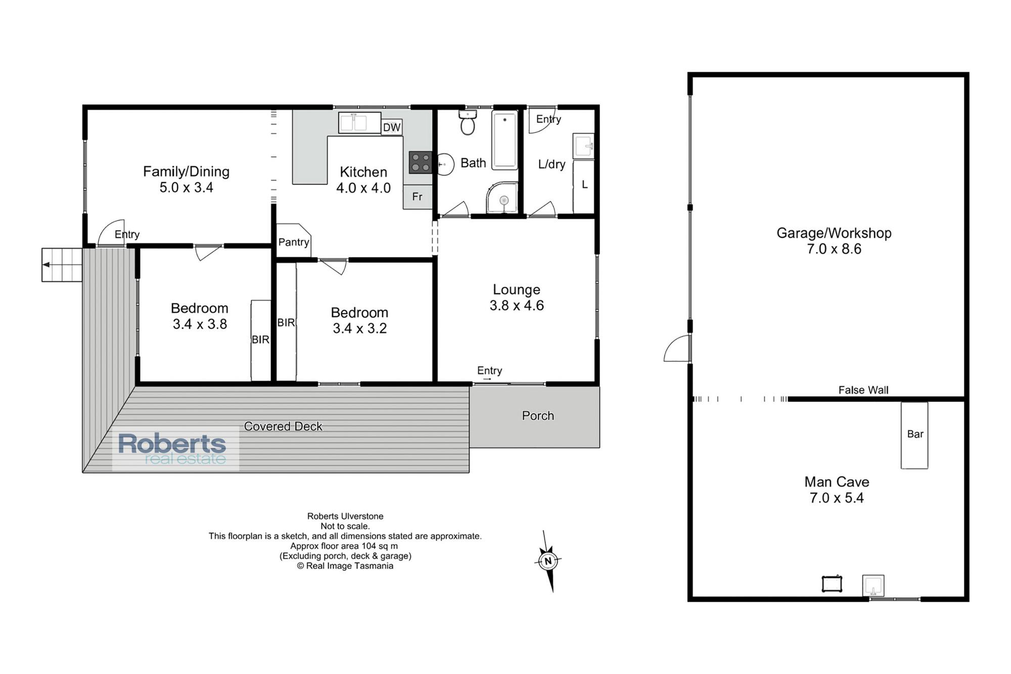
The heart of this home is the well-lit kitchen, which includes stylish black accessories, a new ceramic stovetop and oven, a sleek range hood, a dishwasher, a double sink, and a good-sized pantry. The open-plan design connects the kitchen and dining areas, where a cozy heat pump provides warmth. Additionally, the installation of NBN ensures seamless connectivity.
Nestled at the back of the home is a sunny private living area, offering a serene retreat for the family and overlooking the backyard. The spacious bathroom features a bath, shower, toilet, and the added comfort of IXL Tastic lighting/heating. The laundry area is functional and provides ample storage solutions.
Beyond the interiors, a spacious deck beckons for outdoor entertaining, providing the perfect setting for memorable gatherings. The property also boasts an impressive 14m x 7m Colorbond shed with dual 3x3m openings and electric roller doors-providing ample space for a caravan and a boat! The shed includes a fantastic man cave featuring a wood heater, sink, and timber bar area.
The property’s flat grounds are very appealing, with low-maintenance established gardens, a fully fenced yard, and generous off-street parking space – offering a secure area for children and pets.
In addition to these appealing features, this property is conveniently located near Ridgely Primary School, the IGA Supermarket with Post Office facilities, a Service Station, and Burnie, only a short drive away.
This property is a must-see!
“Roberts Real Estate have obtained all information in this document from sources considered to be reliable; however, we cannot guarantee its accuracy. Prospective purchasers are advised to carry out their own investigations. All measurements are approximate. Please note, photos are indicative of the property only.”

