Impressive Family Residence in Dromedary
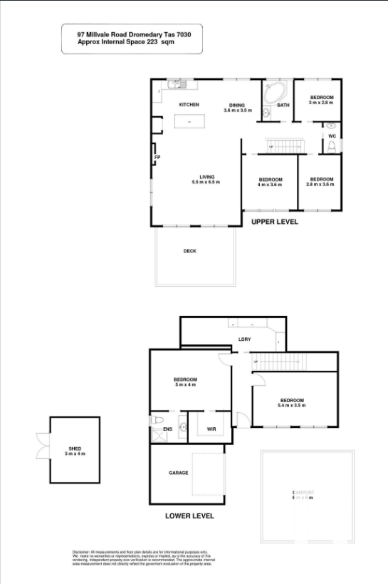
The large open plan living area is the heart of the home, providing a versatile space for family gatherings and entertaining guests. This area is bathed in natural light, creating a warm and inviting atmosphere. The inclusion of solar panels is a fantastic feature, allowing for energy efficiency and reduced utility costs.
Situated on a generous 2.5-acre fully fenced lot, the property boasts a fantastic garden that is ideal for hobby farming, gardening enthusiasts, or simply enjoying the outdoors. The expansive grounds offer endless possibilities for outdoor activities and future developments.
This wonderful family home is a rare find and offers a unique opportunity to enjoy a serene lifestyle in Dromedary. Don’t miss out on making 97 Millvale Road your new home.
Roberts Real Estate have obtained all information in this document from sources considered to be reliable; however, we cannot guarantee its accuracy.
Prospective purchasers are advised to carry out their own investigations. All measurements are approximate.

