Peaceful Country Living on Just Under 3.5 Acres
Set on just under 3.5 acres, the property features beautiful established gardens lush lawn area and sweeping countryside views that can be enjoyed from the large entertaining deck, the perfect spot for relaxing or hosting family gatherings.
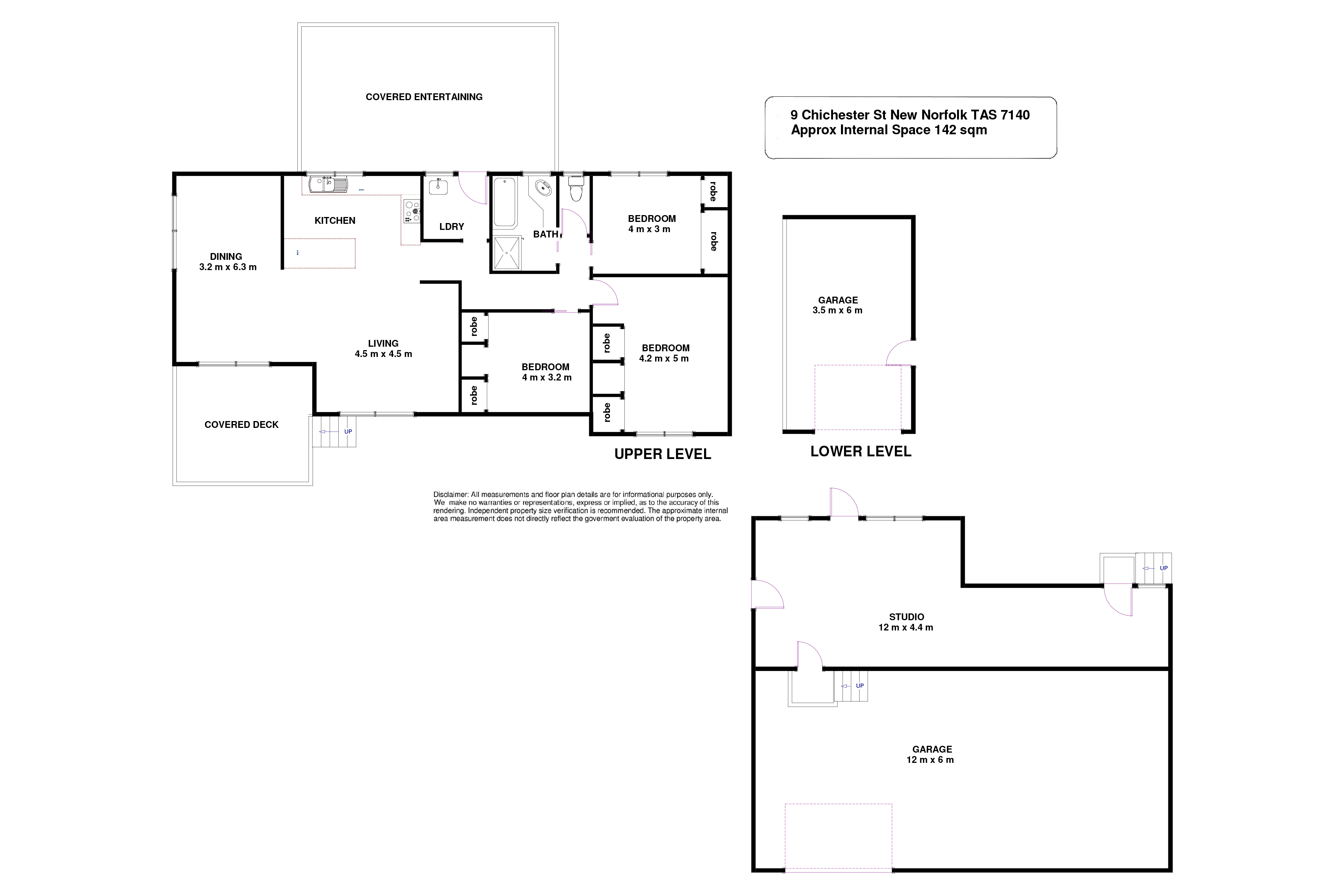
Inside, the home offers warm, open-plan living with a well-appointed timber kitchen and generous lounge area with seperate dining. The property also includes a large multiple car garage/workshop, fully fenced paddocks, and a dedicated teenage retreat/rumpus or studio ideal for extended families or guest accommodation.
Whether you’re seeking a peaceful hobby farm, a country escape, or a spacious family haven, this property has it all.
Key Features:
– Three-bedroom home with open-plan living and wood heating
– Large deck capturing beautiful rural views and sunshine
– Spacious workshop with excellent storage and vehicle access
– Fully fenced property with established gardens and lawns
– Separate teenage retreat or guest accommodation option
– Set on just under 3.5 acres – ideal hobby farm potential
– Peaceful rural location, minutes from New Norfolk town centre
Roberts Real Estate have obtained all information in this document from sources considered to be reliable; however, we cannot guarantee its accuracy.
Prospective purchasers are advised to carry out their own investigations. All measurements are approximate.

