Stop searching for your acreage dream, you've found it!
Feel the stresses of modern-day living melt away as you drive up the lovely tree lined driveway to this beautiful period style home set on just over 20 acres of land. Ideally set up for the equestrian, this property would also be suited to those wanting to start a hobby farm or just looking for space to relax and unwind in this peaceful setting.
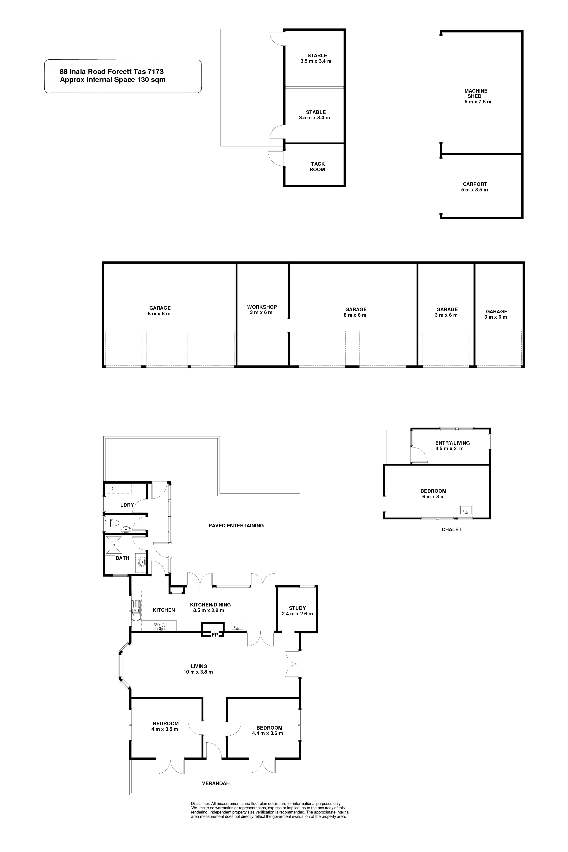
The home features two large bedrooms at the front of the property both with French doors that lead to the front verandah and peaceful rural views. A hallway beckons you through to the large dining and living room with feature timber ceiling and toasty warm wood heater and is the heart of this very attractive home. A charming window seat with large picture windows enjoys views of a stunning mulberry tree and feature stone wall, the perfect place to relax and read your favourite book or even take a nap in the dappled sunlight. The modern eat in kitchen enjoys engaging views over the paved alfresco entertaining area and country style gardens through the large picture windows which allow light to flood into the home.
Leading from the kitchen, a separate wing of the home houses the bathroom which has recently been beautifully renovated and boasts a modern and practical walk in shower and sleek vanity. A good-sized laundry is also located in this wing of the home and a separate toilet. A large shed with wood heater has been used as a sleepout and would provide some privacy for a teenager, or alternatively make a nice studio for the artist in the family.
Outside the family car enthusiast will be delighted with the vehicle accommodation on offer with seven bay garaging and workshop. Horse lovers will be excited to see that the infrastructure of offer includes a round yard, fenced paddocks, a three-bay machinery shed, a partially constructed arena and the piece de resistance, two stables with concrete flooring and a tack/feed room! With a mix of pasture and bush you could set up a great cross-country course or track for bike riders too.
Located just a short 12 minute drive to the Sorell shopping district with supermarkets, specialty shops, restaurants, take aways, local school and medical centers, this property really has the best of both worlds… acreage with peace and quiet with the convenience of being close to everything. What more could you ask for?
Additional features;
Bore water
Sheep crush and 3 yards
Large fenced yard for veggies
The home features two large bedrooms at the front of the property both with French doors that lead to the front verandah and peaceful rural views. A hallway beckons you through to the large dining and living room with feature timber ceiling and toasty warm wood heater and is the heart of this very attractive home. A charming window seat with large picture windows enjoys views of a stunning mulberry tree and feature stone wall, the perfect place to relax and read your favourite book or even take a nap in the dappled sunlight. The modern eat in kitchen enjoys engaging views over the paved alfresco entertaining area and country style gardens through the large picture windows which allow light to flood into the home.
Leading from the kitchen, a separate wing of the home houses the bathroom which has recently been beautifully renovated and boasts a modern and practical walk in shower and sleek vanity. A good-sized laundry is also located in this wing of the home and a separate toilet. A large shed with wood heater has been used as a sleepout and would provide some privacy for a teenager, or alternatively make a nice studio for the artist in the family.
Outside the family car enthusiast will be delighted with the vehicle accommodation on offer with seven bay garaging and workshop. Horse lovers will be excited to see that the infrastructure of offer includes a round yard, fenced paddocks, a three-bay machinery shed, a partially constructed arena and the piece de resistance, two stables with concrete flooring and a tack/feed room! With a mix of pasture and bush you could set up a great cross-country course or track for bike riders too.
Located just a short 12 minute drive to the Sorell shopping district with supermarkets, specialty shops, restaurants, take aways, local school and medical centers, this property really has the best of both worlds… acreage with peace and quiet with the convenience of being close to everything. What more could you ask for?
Additional features;
Bore water
Sheep crush and 3 yards
Large fenced yard for veggies
Roberts Real Estate have obtained all information in this document from sources considered to be reliable; however, we cannot guarantee its accuracy.
Prospective purchasers are advised to carry out their own investigations. All measurements are approximate.

