The Lifestyle You Have Dreamed About
The unique & inspired architecture of this fabulously expansive home is guaranteed to engage, with its visually striking design and flexible floorplan. Relax and appreciate the centralized coolness of open plan living in this light and airy home, or retreat to one of the self-contained wings for privacy or an afternoon nap.
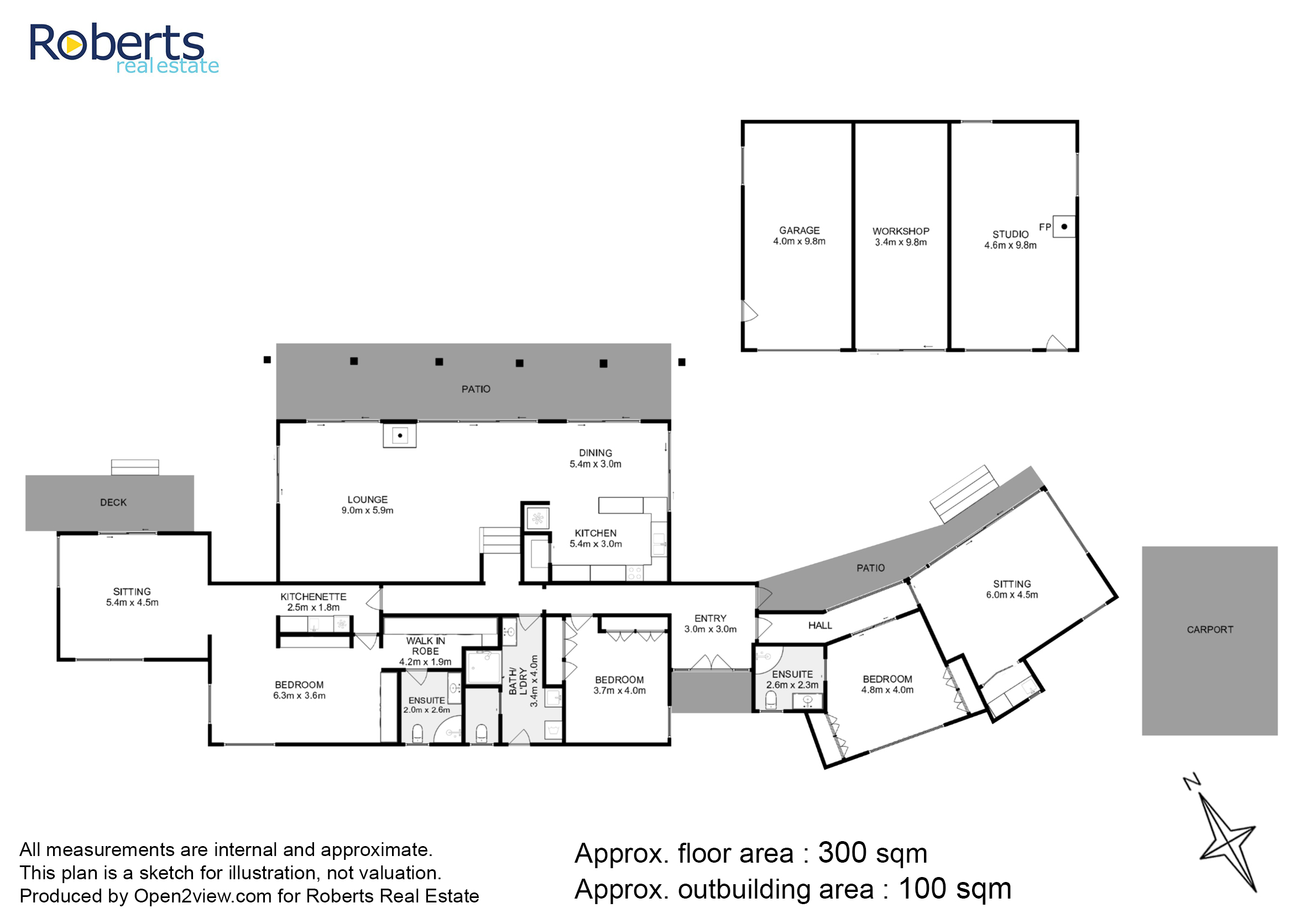
This impressive, naturally lit home exudes sophistication and is positioned on a generous allotment of approximately 20,880m2 (5 acres).
The home is separated into 3 zones, the split level central one with large kitchen, dining and lounge with a wood heater, and or heat pump, your choice! Discover spacious open plan living and dining with large windows that provide glorious views to the north. Centrally located and carefully designed, the well-equipped kitchen boasts walk-in pantry, Granite benchtops, stainless steel appliances with neighbouring dining area, or sliding door access for outside breakfast, coffee and all day and night entertaining. Up the stairs to a generous sized bedroom with built in robes, bathroom and laundry.
The additional east and west ends of the home are like apartments themselves, each with a lounge, kitchenette, bedroom and en-suite. The whole property is built to capture the all-day sun in Tasmania’s sunniest town, with the advantage of being able to overlook your garden, dam and pasture with the ocean in the distance. Alternatively sneak across the road in the northern boundary and walk almost directly onto the 2nd tee of the Bicheno Golf Club.
Surrounded by gorgeous shady trees and lawns, you truly get the benefits of living amongst a country atmosphere with the convenience of such a fantastic location.
Outside you are welcomed with a remote access boat shed/garage, adjoining the garage is an ideal studio or entertainment room, plus 2 carports located close by to one of the numerous entrance points of the house.
70 Rosedale Road at a glance:
• Located within easy access to the beaches, shops and Douglas Apsley National Park
• Fully irrigated and landscaped gardens
• Reverse cycle air-conditioning & a fireplace so you can live in comfort all year round
• High ceilings, air conditioning, screens and blinds
• Chef’s kitchen with gas cooktop, dishwasher and pantry
• King sized airy bedrooms are all appointed with walk in robe or built-ins
• Modern stylish bathrooms, some with under floor heating
• External speaker system
• Vegie beds and numerous external storage options
• Landscaped and sun-drenched courtyard provides a quiet oasis
• Pasture area suitable for a couple of horses, sheep or orchard, with dam water storage
• Currently utilised as a 3 bedroom home, it could be converted into up to 5 bedrooms, depending upon individual requirement.
This ultimate getaway property is difficult to explain in writing and photos, and needs to be inspected to be truly appreciated. If you are of the opinion that this home may be suitable for you and yours, please do not hesitate to call and arrange a time to inspect. Alternatively a virtual inspection can be arranged upon request.
Roberts Real Estate have obtained all information in this document from sources considered to be reliable; however, we cannot guarantee its accuracy.
Prospective purchasers are advised to carry out their own investigations. All measurements are approximate.

