Renovated Home in a Central Location!
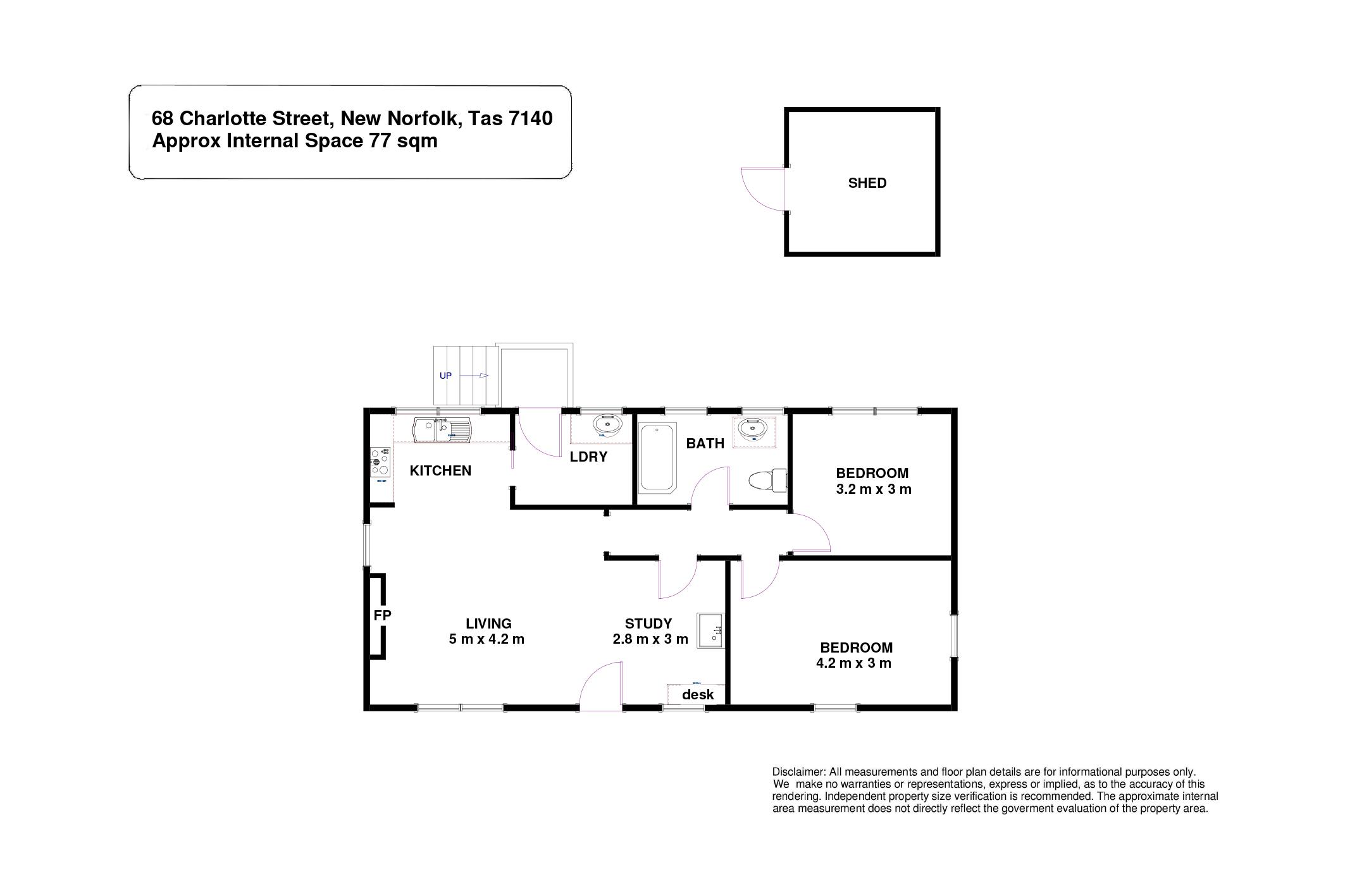
Originally designed as a three-bedroom home, it has been transformed into a two-bedroom layout, though it can readily be converted back. The spacious open-plan living area features impressive upgrades to both the bathroom and kitchen, enhancing the overall appeal of the home.
Located in the heart of New Norfolk, this home not only promises comfortable living but also places you within reach of local amenities, schools, and parks. Whether you’re looking to settle down or invest, 68 Charlotte Street is a rare find that caters to a variety of lifestyle needs. Don’t miss the opportunity to make this delightful property your own.
Roberts Real Estate have obtained all information in this document from sources considered to be reliable; however, we cannot guarantee its accuracy.
Prospective purchasers are advised to carry out their own investigations. All measurements are approximate.

