Large home, Double block
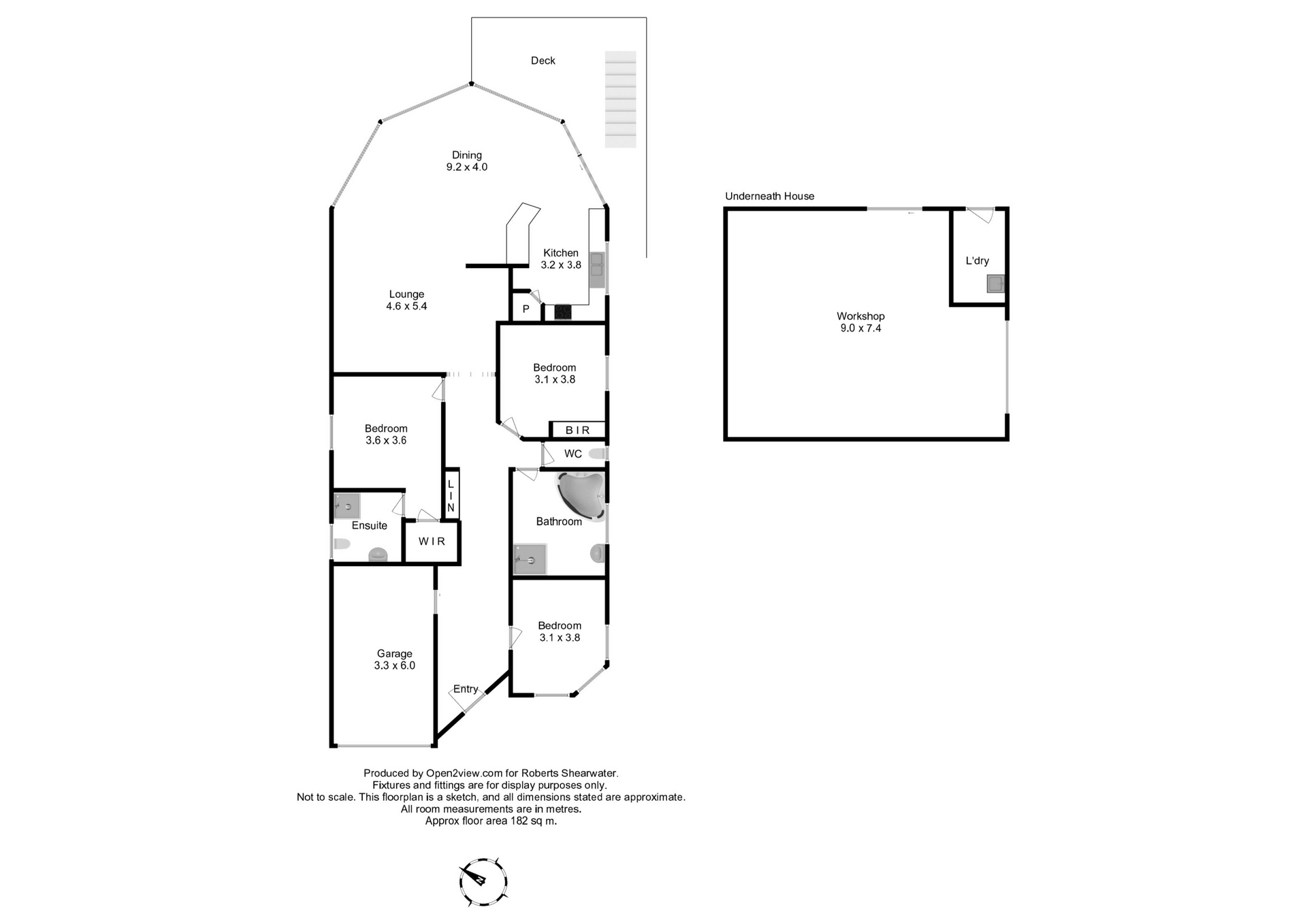
In a premier location, this substantial home has been carefully crafted and designed to maximise family space and capture great views of the township and the estuary beyond. The double block of 1340m2 is rare in this central location and has the potential to revert to 2 separate blocks, subject to council approval. Built in 2005, the clever design offers a large open plan living area, bathed in sunshine and natural light, with vaulted ceilings adding to the spaciousness of the space. Generous proportioned bedrooms, each with great storage, are private to each other. A single garage on this level, with internal access, makes those rainy shopping days a breeze. By building the home on an elevated block, the lower level of the home provides secure storage, a 2nd single garage and workshop area. Under cover entertaining downstairs is private and the upper balcony is a great place to enjoy a quiet evening. A 3rd garage space with workshop / storage, small green house and neat fruitful gardens complete this smart home. Walk to beaches, shops and cafes, this is a home for those looking for space inside and out. PRESCHEDULED VIEWING TIMES, PLEASE REGISTER YOUR INTEREST

