Carinya - A Peaceful Semi-Rural Retreat Just Minutes from Town
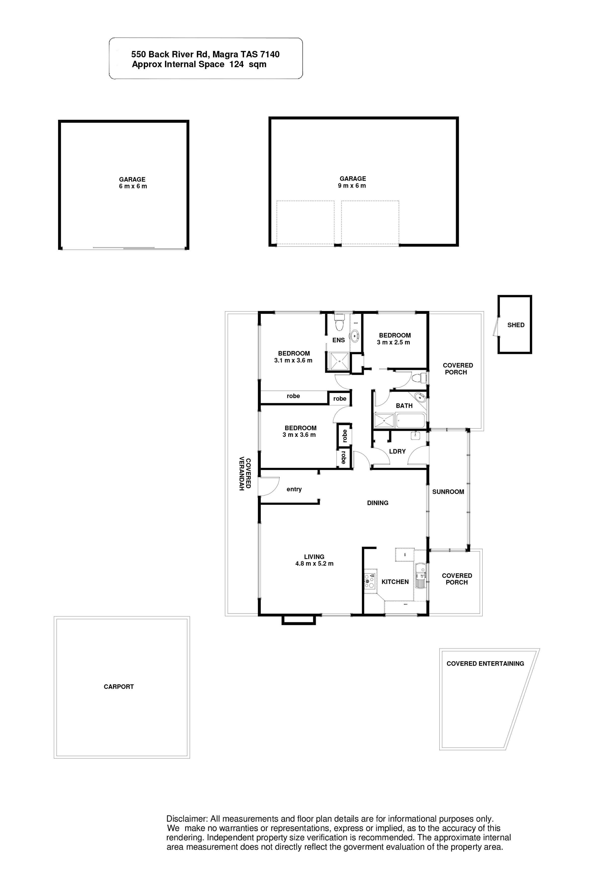
Inside, the home features three generous bedrooms with built-in wardrobes, including a master suite complete with ensuite. The central family bathroom is well-appointed, and the spacious living room captures serene rural views through large picture windows. Year-round comfort is assured with a wood heater and reverse-cycle heat pump.
The open-plan kitchen and dining area offers excellent functionality, flowing through double glass doors to a light-filled sunroom and out to a flat, cemented undercover entertaining area, perfect for gatherings in any season.
Outdoors, the property shines with extensive infrastructure, including a three-bay garage, separate double garage, two-bay carport, full-length verandah, and a large shed ideal for stock feed or additional storage. The land is divided into two paddocks with well-maintained, easy-care gardens and the convenience of town water.
A wonderful lifestyle opportunity awaits at Carinya, a home that offers space, practicality, and peaceful rural living with urban amenities close by.
Roberts Real Estate have obtained all information in this document from sources considered to be reliable; however, we cannot guarantee its accuracy.
Prospective purchasers are advised to carry out their own investigations. All measurements are approximate.

