Fully Renovated - Investment Opportunity
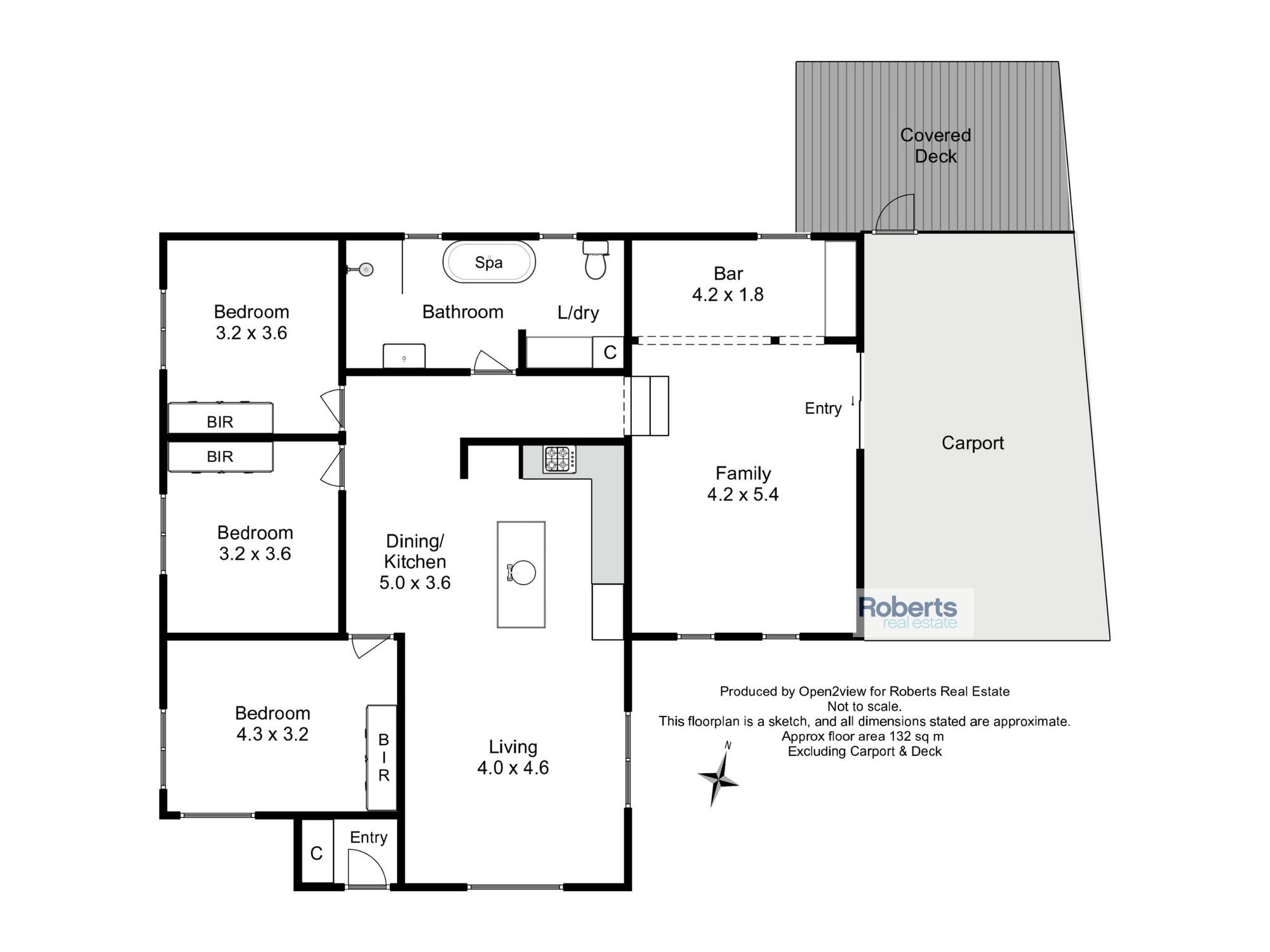
• The family/entertainment room is sure to impress. Including a built in bar, ready for those nights of entertaining.
• A large bathroom and laundry combined is beautifully renovated and features a deep spa bath and a walk in shower.
• Cabinetry for the laundry space provides great storage for both laundry and bathroom.
• Open plan kitchen fitted with top appliances including a double drawer dishwasher and gas cooker.
• 3 bedrooms all with built in wardrobes.
• A open plan living area with beautiful views of surrounding mountains.
• Outside there is a carport which leads to the fully fenced backyard.
Once in the backyard you have a timber deck area which will be the perfect spot for summer BBQ’s, a small garden shed and two large hot houses with vegetable gardens.
“Roberts Real Estate has made all reasonable efforts to obtain information regarding this property from industry and government sources that are deemed to be both reliable and factual; however, we cannot guarantee their complete accuracy in every instance. Prospective purchasers are advised to carry out their own investigations to ensure the property satisfies their suitability/usage requirements. All measurements and boundary lines are approximate.”

