Wonderful Family Home with Ocean Views!
Step inside to discover a spacious open plan living, kitchen, and dining area that all flow out onto a large private deck, ideal for entertaining or relaxing whilst what lays in front of you !
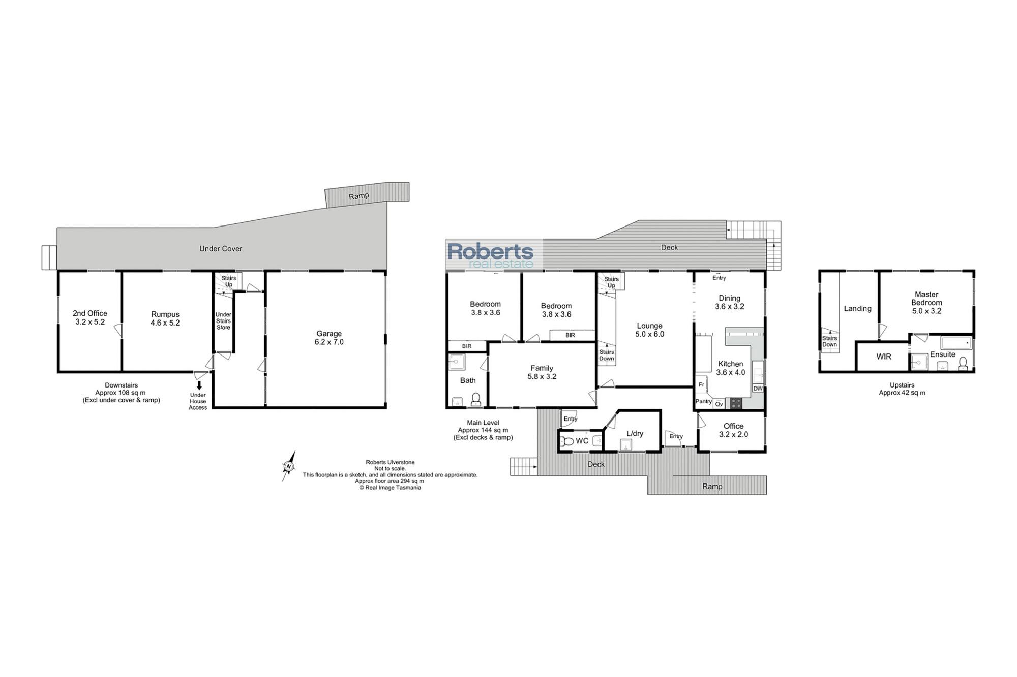
On the first level, you’ll find two generously sized bedrooms, each with built-in wardrobes, providing ample storage. The family room is perfect for children to play or for teenagers to hang out, creating a space for all family members. This level also features a dedicated office area, perfect for remote work or study.
Upstairs is where the master bedroom awaits. This luxurious retreat boasts magnificent ocean views, a large walk-in wardrobe, and a private ensuite, ensuring comfort and privacy.
Venture downstairs to discover a spacious double garage, a versatile rumpus or games room, and an additional room that can serve as a second office or storage space.
The low-maintenance yard is perfect for children and pets. The large driveway area provides ample off-street parking or an area for a basketball ring or soccer nets, this home truly caters for all the family needs!
Don’t miss out on this incredible opportunity – this home has everything you need and more!
• Large four bedroom family home with Ocean Views!
• Open plan living, kitchen, dining areas with access out onto the large deck
• Spacious double garage with rumpus room and second office or storage area
• Low maintenance enclosed tiered yard
“Roberts Real Estate have obtained all information in this document from sources considered to be reliable; however, we cannot guarantee its accuracy. Prospective purchasers are advised to carry out their own investigations. All measurements are approximate. Please note, photos are indicative of the property only.”

