Location, location, location, with abundant opportunity!
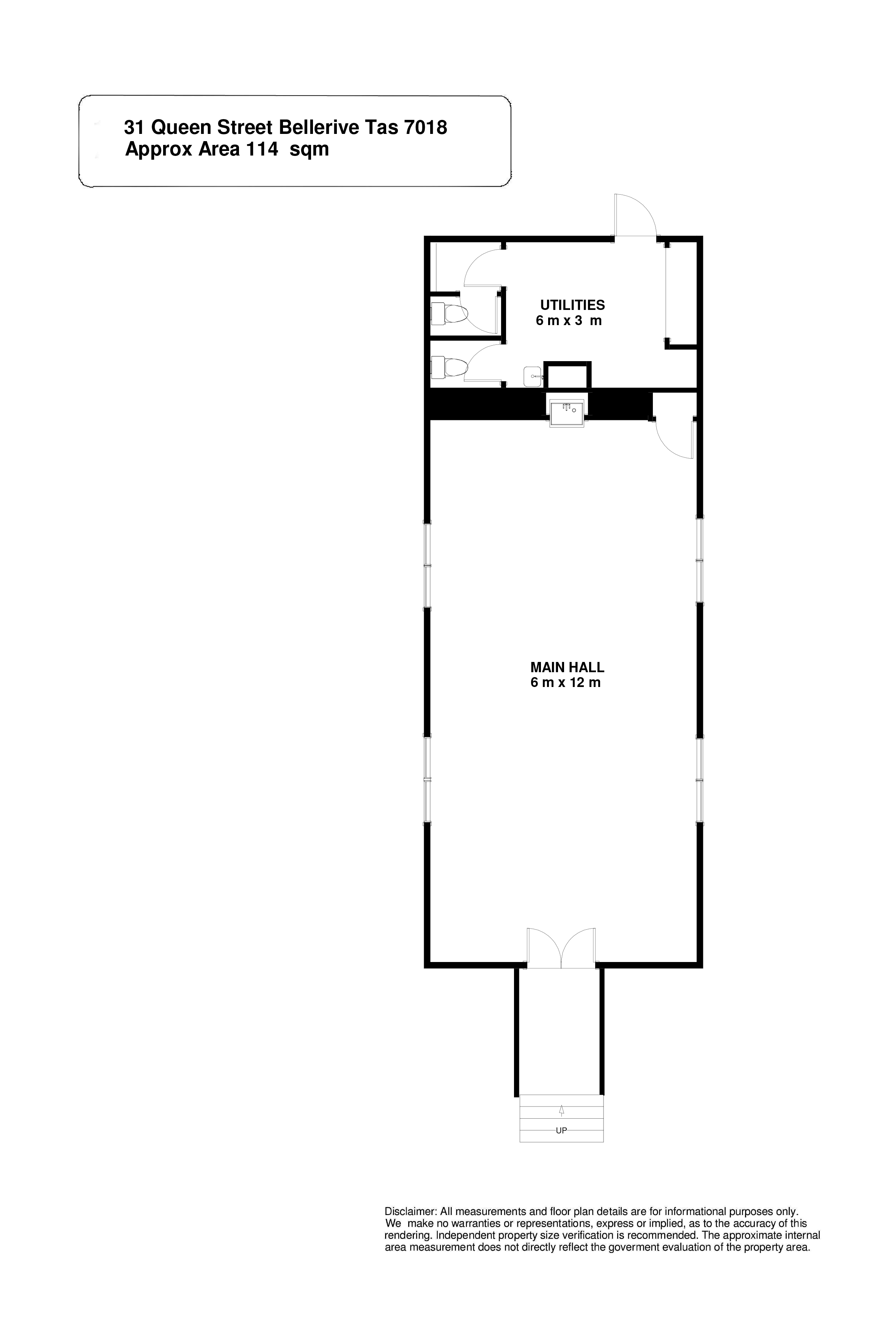
Situated on a large corner block of 2035m2 is this lovely Heritage listed sandstone building constructed in 1852 as St Mark’s Chapel of Ease and later utilized as the Boy Scouts Hall. Representative of a modest mid-Victorian Chapel, this sandstone chapel is set within a small cemetery with a simple gabled roof, buttressed corners, a stone bellcote and simple paned windows. Internally the building is connected to mains power, has hardwood floorboards, both male and female toilet facilities and a pellet wood fire.
St Mark’s Chapel of Ease served the community for just over half a century with the new St Mark’s Church located nearby being consecrated in 1904. Set amongst a small precinct of mid-nineteenth century buildings with the predominant historic architectural styles in the vicinity being Federation with a mix of Edwardian and Federation-Queen Anne, this is a rare opportunity to secure your own piece of Tasmanian history. The chapel continued to be used as a Sunday School until 1917 and in 1927 the Bellerive Sea Scouts became the tenants until recent times. The chapel has also been rented out to a local business and is now ready for the new owners to give it a new lease of life.
The property has also been approved by Clarence City Council for a one lot subdivision of approximately 542m2 and is zoned as General Residential adding even more exciting opportunities to this rare offering. The last burial at this closed cemetery was over 100 years ago and the new purchaser will need to apply for, and be approved as, a Cemetery Manager.
Situated in walking distance to everything with Bellerive beach at the end of the street and a bus stop at the boundary. Eastlands shopping centre, quality restaurants, medical centres and Village Cinemas is a short 5 min drive away and the Hobart CBD only a 13 mins drive. Originally known as Kangaroo Point, Bellerive is a highly sought after locale with great schools and lovely parks.
For more information on this fantastic opportunity, please call Karen Young today.
Additional features:
3 mins walk to Salamanca Fresh supermarket
5 mins walk to Blundstone Arena
7 mins walk to the Bellerive Yacht Club
St Mark’s Chapel of Ease served the community for just over half a century with the new St Mark’s Church located nearby being consecrated in 1904. Set amongst a small precinct of mid-nineteenth century buildings with the predominant historic architectural styles in the vicinity being Federation with a mix of Edwardian and Federation-Queen Anne, this is a rare opportunity to secure your own piece of Tasmanian history. The chapel continued to be used as a Sunday School until 1917 and in 1927 the Bellerive Sea Scouts became the tenants until recent times. The chapel has also been rented out to a local business and is now ready for the new owners to give it a new lease of life.
The property has also been approved by Clarence City Council for a one lot subdivision of approximately 542m2 and is zoned as General Residential adding even more exciting opportunities to this rare offering. The last burial at this closed cemetery was over 100 years ago and the new purchaser will need to apply for, and be approved as, a Cemetery Manager.
Situated in walking distance to everything with Bellerive beach at the end of the street and a bus stop at the boundary. Eastlands shopping centre, quality restaurants, medical centres and Village Cinemas is a short 5 min drive away and the Hobart CBD only a 13 mins drive. Originally known as Kangaroo Point, Bellerive is a highly sought after locale with great schools and lovely parks.
For more information on this fantastic opportunity, please call Karen Young today.
Additional features:
3 mins walk to Salamanca Fresh supermarket
5 mins walk to Blundstone Arena
7 mins walk to the Bellerive Yacht Club
Roberts Real Estate have obtained all information in this document from sources considered to be reliable; however, we cannot guarantee its accuracy.
Prospective purchasers are advised to carry out their own investigations. All measurements are approximate.

