Country Lifestyle on 3.186 Hectares - Your Ellendale Escape
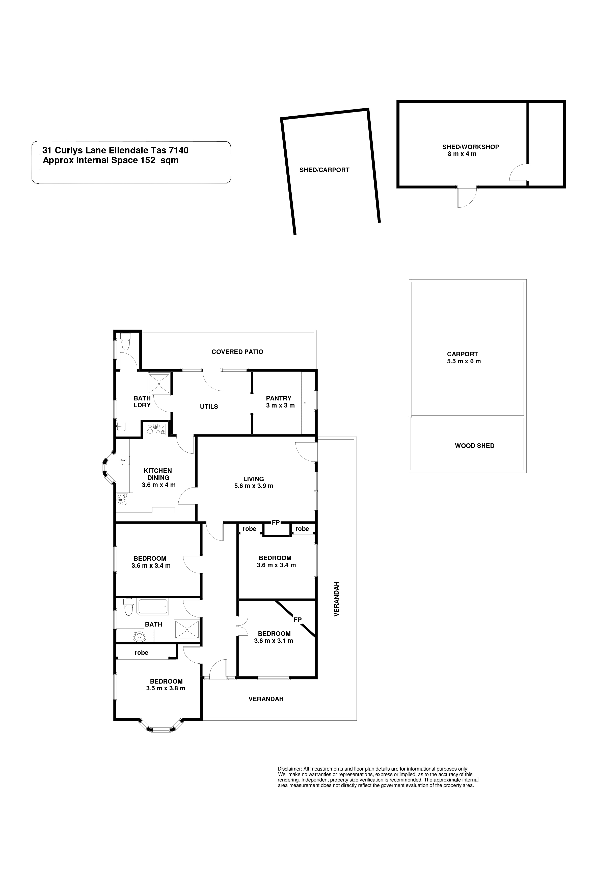
The comfortable 4-bedroom brick and weatherboard family home features a well-presented main bathroom, along with an additional shower and toilet located in the laundry for added practicality. Surrounding the home are established cottage gardens, a heritage apple orchard, multiple fruit trees, and a productive hot house, ideal for buyers seeking a self-sufficient lifestyle. The property is fully fenced with separate paddocks, making it perfect for hobby farming, small livestock, or simply enjoying open rural space.
Multiple sheds and a carport provide excellent storage and workshop options, while town water adds valuable convenience. Just a short walk brings you to the local shop and post office, and you’re only minutes from local favourites such as Rockhill Estate with its renowned produce, the Westerway Raspberry Farm, and the natural beauty of Mount Field National Park.
Offering scenic surrounds, productive land, and charming rural living, 31 Curlys Lane delivers the full country lifestyle package in one of the region’s most beloved farming communities.
Roberts Real Estate have obtained all information in this document from sources considered to be reliable; however, we cannot guarantee its accuracy.
Prospective purchasers are advised to carry out their own investigations. All measurements are approximate.

