For the Hobby Farmer or Growing Family
Would be ideal for the hobby farmer to grow their fruit/vegetables or raise livestock with numerous outbuildings, the property is fully fenced into multiple paddocks – the foundation is already in place.
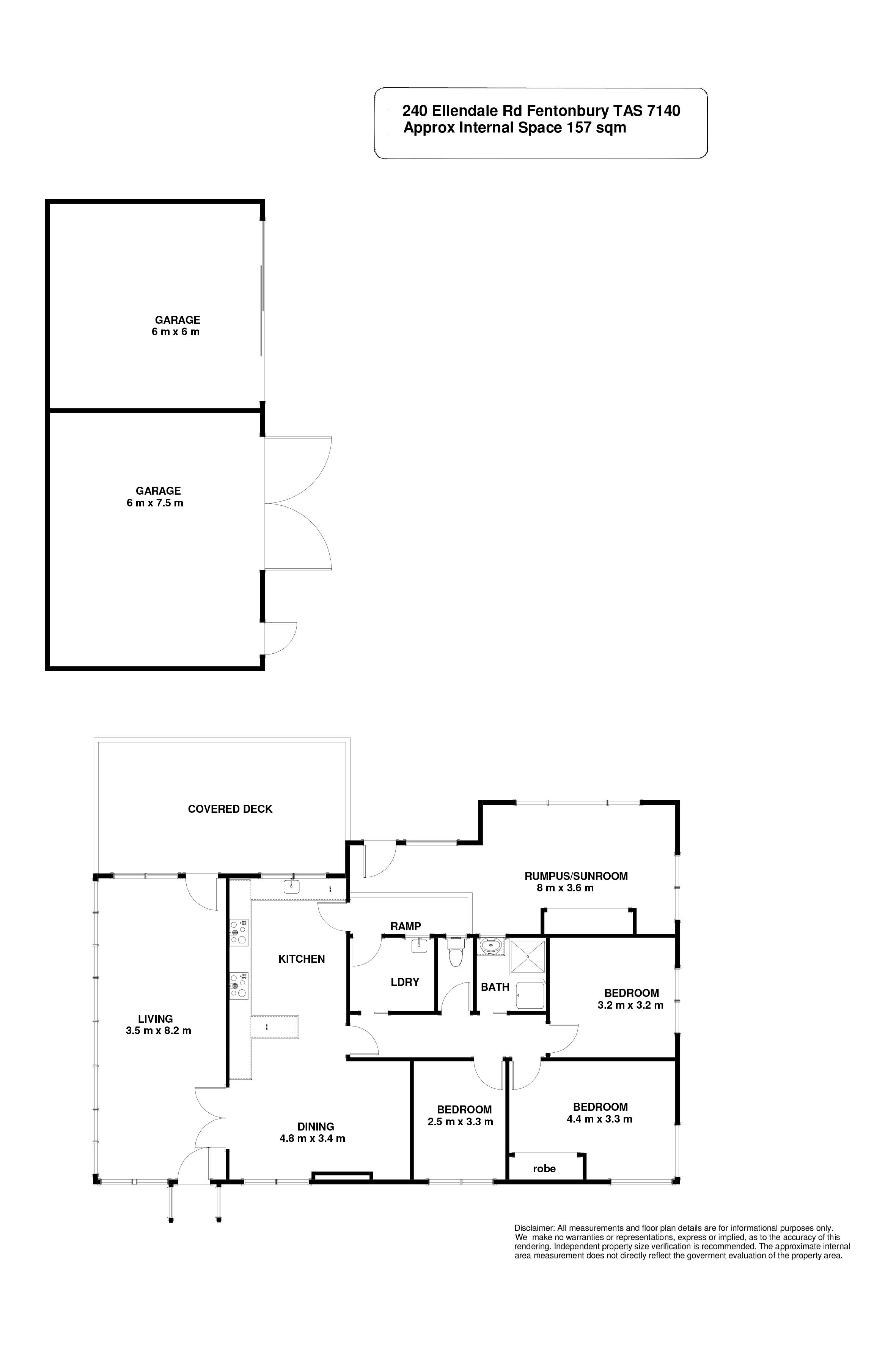
In a quiet setting with rural views, you can see why farming land like this only comes to market once in a lifetime. With great road frontage and STCA, the property could also be subdivided into small blocks. The home itself offers three large bedrooms, a spacious open plan living, and a separate lounge/rumpus. This fantastic home would suit those looking to retire on the land or for a growing family……
Roberts Real Estate have obtained all information in this document from sources considered to be reliable; however, we cannot guarantee its accuracy.
Prospective purchasers are advised to carry out their own investigations. All measurements are approximate.

