Perfect Starter Home or Smart Investment Opportunity!
Currently rented for $465 per week ending in Nov 2024.
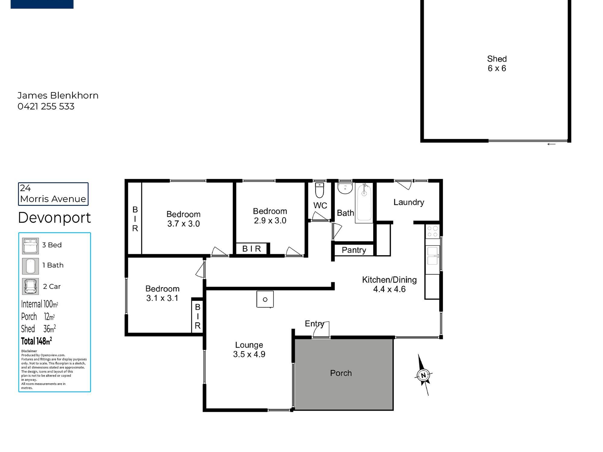
Nestled on a well sized block, this property boasts a secure, child and pet friendly yard, perfect for family living. Inside, you’ll find three generously sized bedrooms, all equipped with built-in robes for ample storage. The spacious lounge invites cosy evenings by the wood heater, while the dining and kitchen area is kept comfortable year-round with a reverse cycle air conditioner.
The kitchen and bathroom have been tastefully updated, ensuring modern convenience and style. Additional features include a separate laundry and a welcoming undercover BBQ area at the front of the home, ideal for entertaining.
Car enthusiasts or those in need of extra storage will appreciate the double lock-up garage, offering plenty of space for vehicles and a workshop area.
Conveniently located, this home is just a short walk to Reece High School, IGA supermarket, a doctor’s surgery, chemist, and local takeaways.
Don’t miss out on this rare find. Secure your future today and give James Blenkhorn a call to arrange an inspection.
Roberts Real Estate have obtained all information in this document from sources considered to be reliable; however, we cannot guarantee its accuracy.
Prospective purchasers are advised to carry out their own investigations. All measurements are approximate.

