The Ideal Getaway!
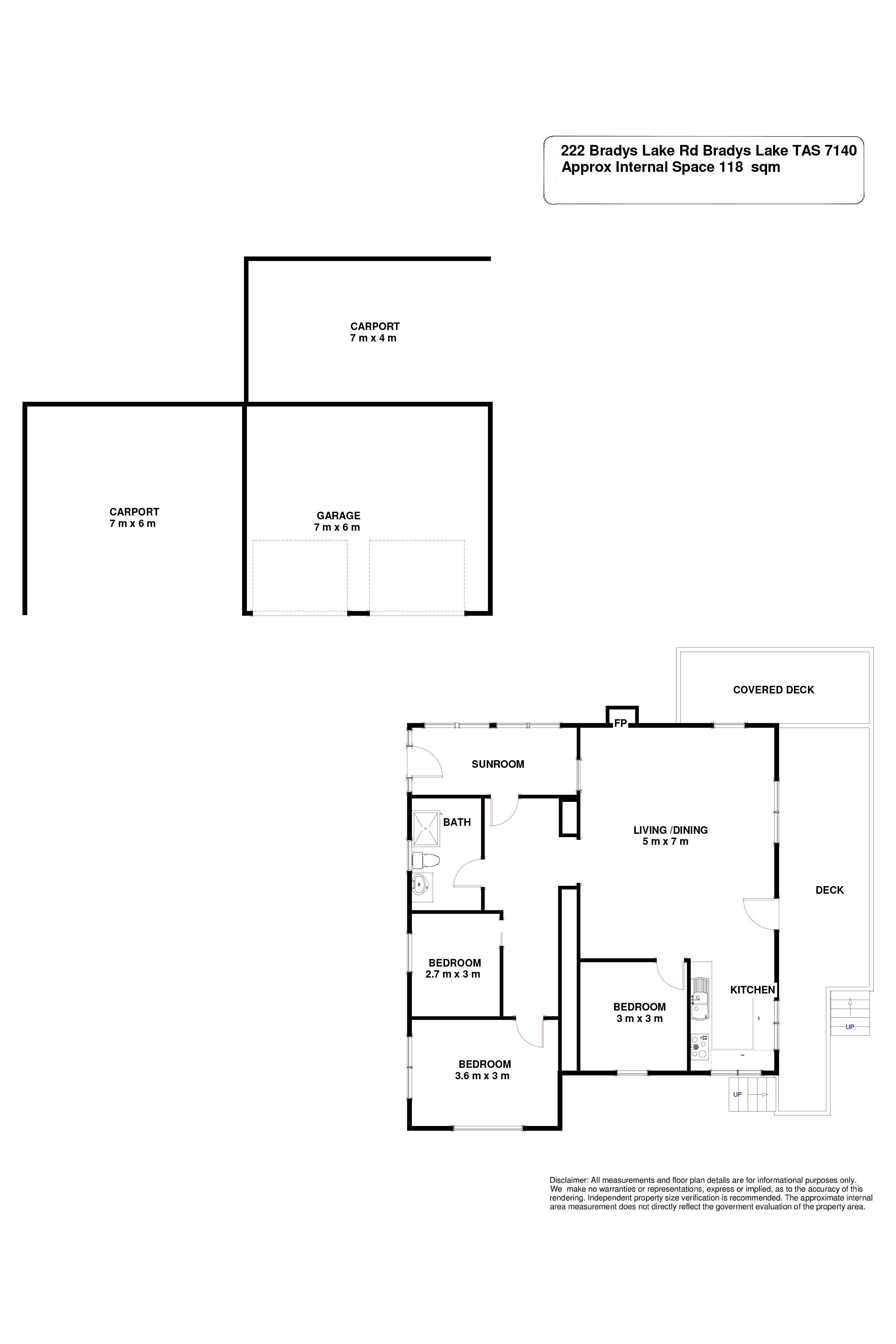
Boasting a magnificent deck, it’s an ideal space for entertaining family and friends while taking in the serene surroundings. The property includes a large shed for ample storage, ensuring you have plenty of room for all your belongings.
Enjoy a short walk to some of the region’s best fishing spots, making it a paradise for outdoor enthusiasts. The level access block provides ease and convenience, making it an ideal choice for those seeking a peaceful shack or a wonderful place to retire. Don’t miss out on this exceptional opportunity to own a piece of tranquility.
Roberts Real Estate have obtained all information in this document from sources considered to be reliable; however, we cannot guarantee its accuracy.
Prospective purchasers are advised to carry out their own investigations. All measurements are approximate.

