Live and Earn - Bay of Beaches
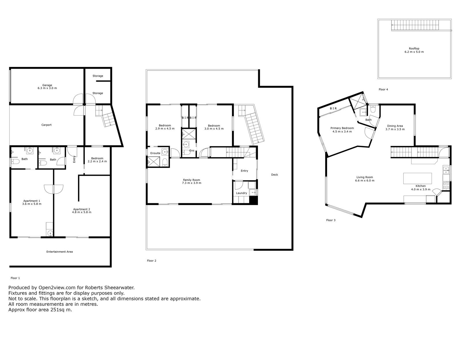
With a natural bush reserve as a backdrop and overlooking the bay of beaches, streamlined features and architectural lines, this iconic 3 storey private home stands quietly and stately in one of the coasts well known holiday destinations. From the roof top terrace, where endless summer evenings are the ideal place to relax, to the 2 self contained apartments on the ground level, the home features some striking elements of design. An ideal retreat for multi generational families or dual dwellers. Built in 2012, the concept for personal space and business options has been integrated seamlessly without eliminating style. The private residence spans over 2 levels, providing dual living areas for all the family and each bedroom enjoying a private bathroom. Every room has an ever-changing view, from coast to bush land and beyond. The expansive wrap around balcony is accessible from the middle level bedrooms and living area remaining private and a fantastic place to enjoy alfresco dining. Designed for the entertainer, the kitchen with an oversized island and generous storage is finished with solid granite benchtops that reflect the local natural colours of the beach and cleverly placed windows offer a view of the natural backdrop. A generous living room with oversized windows is the ideal place to relax and watch the world go by and the private dining area is rich in colour with some interesting roof line design elements. Completing the private space, is the master bedroom and unique ensuite. Separate to the residence, 2 apartments on the ground level are popular for holiday accommodation with the beach directly across the road. Each apartment can be let separately or opened to one space. A clever private terrace accessed from each unit is a lovely space to enjoy with leafy trees overhanging the rendered walls. A unique chance to live and earn, with both apartments fully furnished and equipped to continue this business. The essence of this unique 3 storey property is best experienced in person.
* Full inclusion list available
* Stunning views, central location for holiday makers
* Work from home, Solar system
* 20 minutes to Devonport – Spirit of Tasmania berth
* 1 hour to Launceston
“Roberts Real Estate Shearwater have obtained all information in this document from sources considered to be reliable; however, we cannot guarantee its accuracy. Prospective purchasers are advised to carry out their own investigations. All measurements are approximate. Please note, photos are indicative of the property only.”

