Charming Family Living
Inside, the home features light-filled open plan living, creating a welcoming central hub for everyday life. The layout flows effortlessly, providing functional spaces for relaxing and entertaining.
Set on a generous, level-access block, the property truly shines outdoors. Beautifully established gardens create a private and peaceful backdrop, while the fully secure backyard is perfect for children and pets. A thriving veggie patch offers the opportunity for homegrown produce, complemented by two practical garden sheds for additional storage.
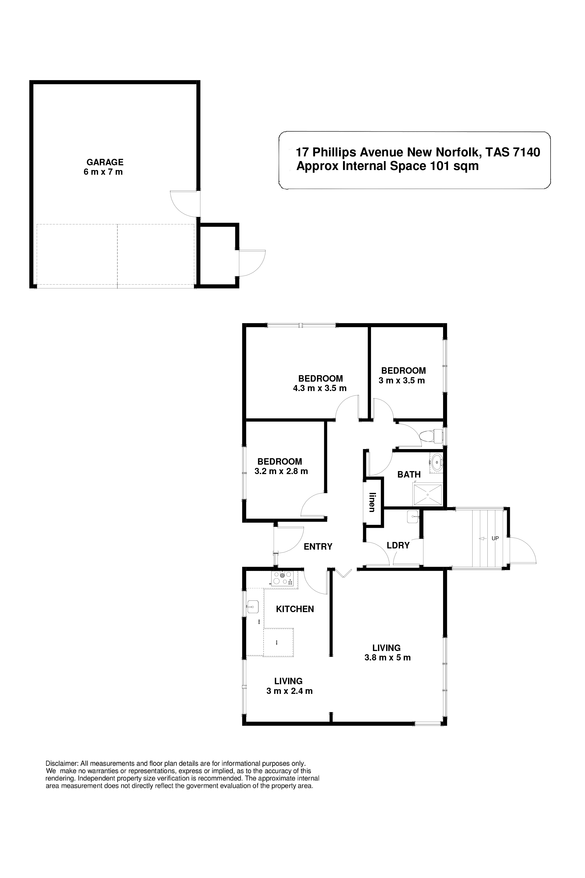
Car accommodation is well catered for with a large double garage complete with electric doors, providing secure parking and workshop potential.
Located close to local schools, shops and services, this is a fantastic opportunity to secure a well-maintained family home in a sought-after location.
A property that combines warmth, practicality and lifestyle appeal – ready for you to move in and enjoy.
Roberts Real Estate have obtained all information in this document from sources considered to be reliable; however, we cannot guarantee its accuracy.
Prospective purchasers are advised to carry out their own investigations. All measurements are approximate.

