Welcome to Acacia Hills Retreat
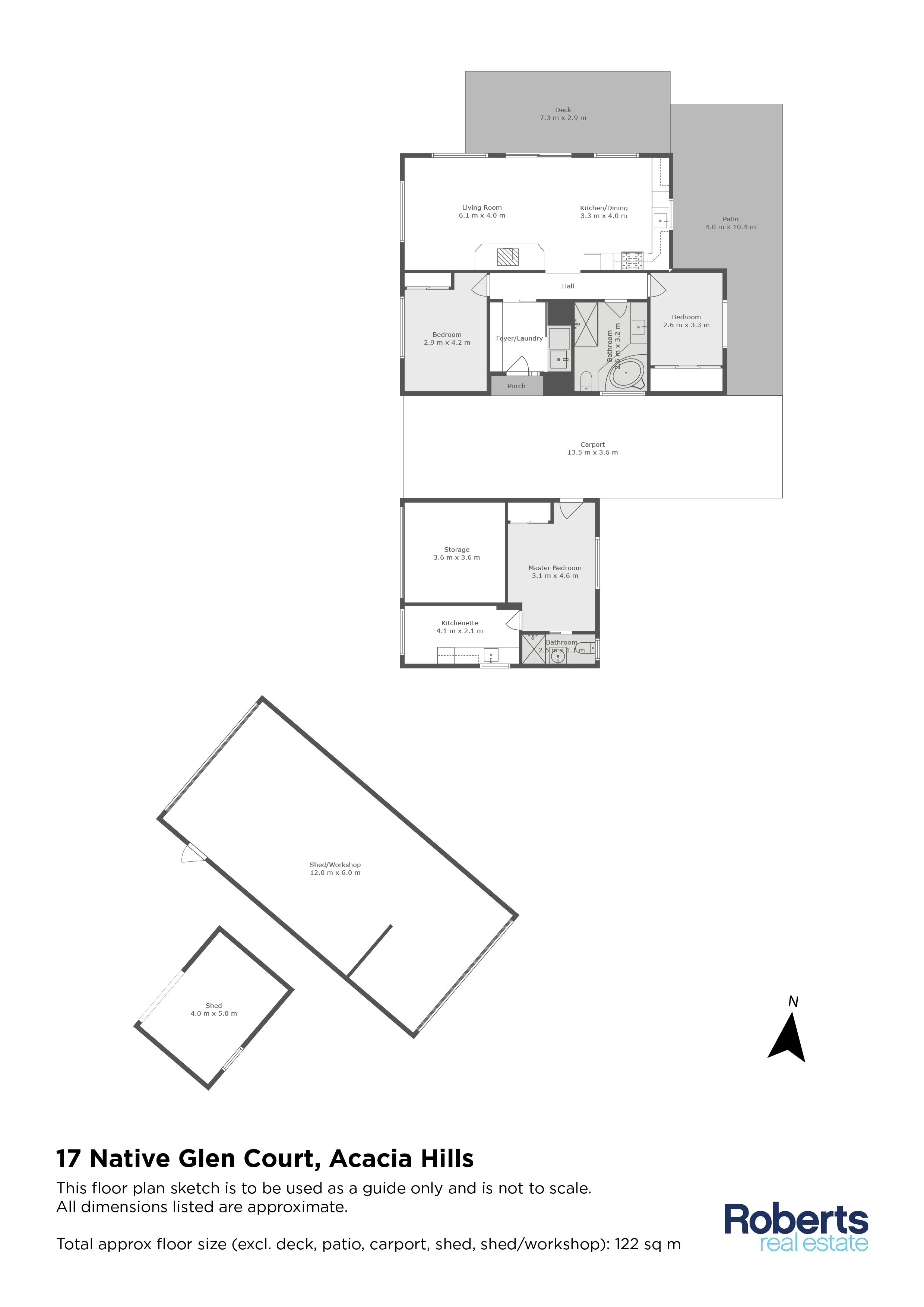
Step inside and prepare to be captivated by the charm and elegance of this meticulously crafted home. Built in 2009, every aspect has been carefully considered to ensure comfort, convenience, and style. Indulge your senses in the upgraded kitchen and main bathroom, both adorned with modern finishes and premium fixtures. Relax and unwind in the spa, offering the ultimate retreat after a long day.
Experience innovative space-saving and storage solutions throughout the entry and laundry areas, providing practicality without compromising on style. Wake up to the gentle warmth of the sun in the north-facing living area, where expansive windows invite the beauty of the outdoors in. Wander along the paths and trails that meander through the property, offering easy access to every corner of your personal paradise.
Enjoy the convenience of double glazing in the master bedroom, main bathroom, and kitchen, providing both insulation and tranquillity. Outdoor lighting and “next level” tile paving enhance the ambiance, creating an inviting atmosphere for outdoor gatherings. Embrace sustainable living with massive water storage totalling 25,000 gallons, automated watering systems, and backup bore water to keep lawns and gardens lush year-round. Firefighting pumps and a robotic Stihl lawnmower ensure efficiency and ease of maintenance.
The large shed, covered outdoor firewood storage and separate self-contained unit offer endless possibilities for additional accommodation, hobbies, or income generation. Whether you envision a BnB, granny flat, or simply a space to call your own, the options are endless. Rest easy behind the remote-controlled driveway gate and wallaby-proof fence, providing security from unwanted visitors while allowing you to embrace the beauty of the surrounding wildlife.
Don’t miss your opportunity to own this slice of paradise. Whether you’re seeking a peaceful retreat, a sustainable lifestyle, or simply a place to call home, 17 Native Glen Court offers everything you’ve been searching for and more. Schedule your private viewing with James Blenkhorn today and prepare to fall in love with your new sanctuary.
Roberts Real Estate has made all reasonable efforts to obtain information regarding this property from industry and government sources that are deemed to be both reliable and factual; however, we cannot guarantee their complete accuracy in every instance. Prospective purchasers are advised to carry out their own investigations to ensure the property satisfies their suitability/usage requirements. All measurements are approximate

