Simply Sublime!
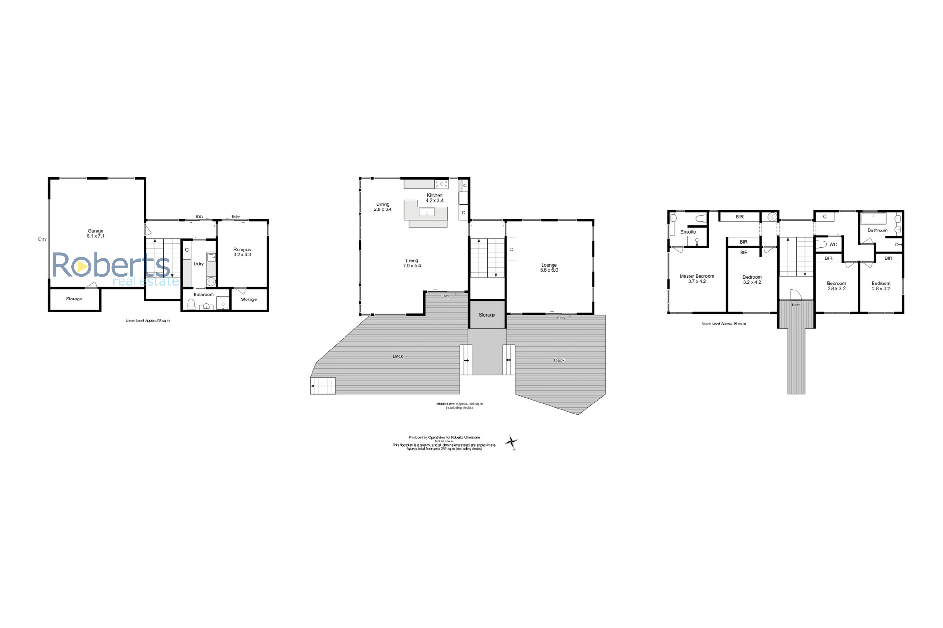
The tri-level home features 4 bedrooms on the upper level including the master with ensuite. The classy bathroom is also on this floor. The main entry is just above the middle level and leads to an amazing living area that takes in some of those spectacular views. This is also where the high quality kitchen, dining and floating breakfast-bar are. The other side of this level is the spacious and inviting formal lounge. There is direct access to one of the best outdoor entertaining areas with fire-pit that you are likely to find in this area.
The lower level offers a rumpus room, large laundry, shower, toilet and internal access to the large double garage.
The yard is very low maintenance and there is also a 6m x 3m workshop as well as a garden shed. There is also plenty of parking space available for a caravan, motorhome or boat.
You’ll need to be super-fast to secure this gem!
Roberts Real Estate have obtained all information in this document from sources considered to be reliable; however, we cannot guarantee its accuracy.
Prospective purchasers are advised to carry out their own investigations. All measurements are approximate.

