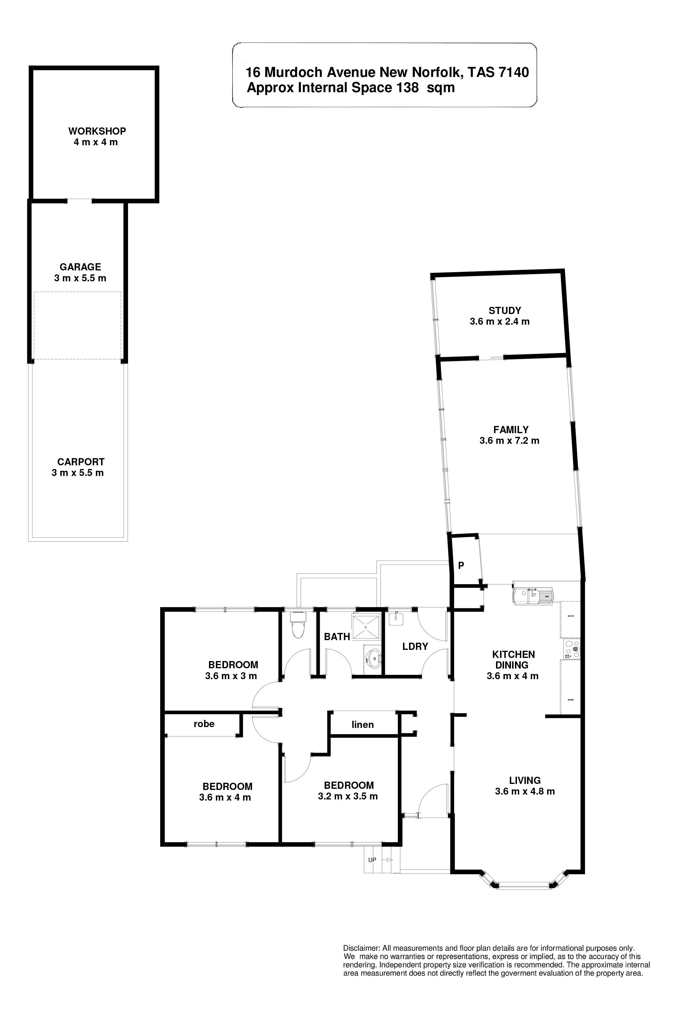
Spacious, Lovely, and Conveniently Located
Entertaining guests is a breeze with the open plan living arrangement, while the sizable rumpus room or second lounge provides a cozy retreat for unwinding after a long day.
Privacy and security are assured on this level access block, fully fenced to provide peace of mind for you and your family. Storage won’t be an issue with both a garage and garden shed at your disposal, and the meticulously maintained gardens only enhance the property’s charm.
Conveniently located near all the amenities New Norfolk has to offer, this home is not to be missed. Make 16 Murdoch Avenue your forever haven – contact us today to schedule a viewing and discover all the wonders this property has in store for you!
Roberts Real Estate have obtained all information in this document from sources considered to be reliable; however, we cannot guarantee its accuracy.
Prospective purchasers are advised to carry out their own investigations. All measurements are approximate.

