A Piece of Rural Paradise
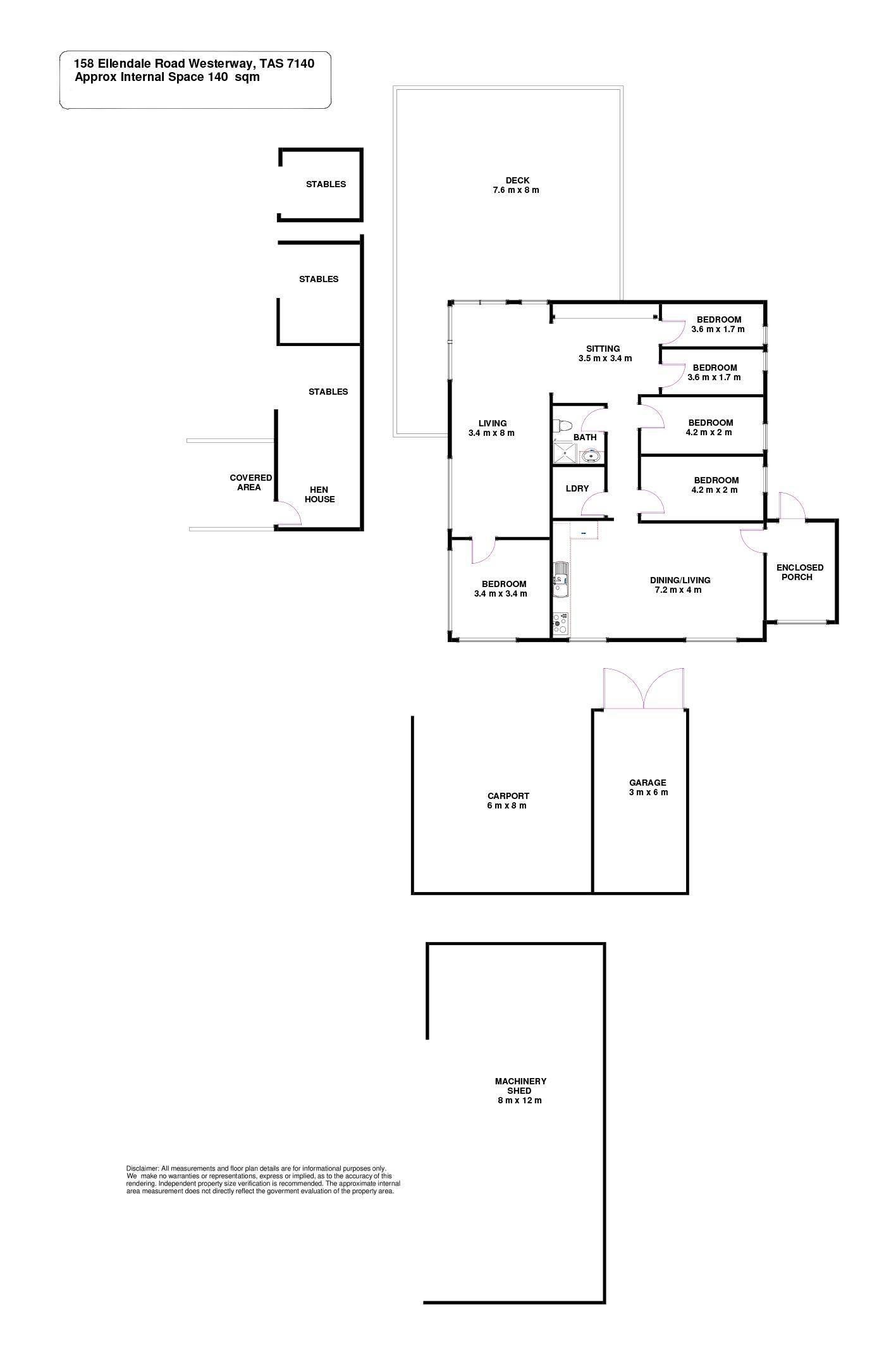
This property boasts two separate living areas, ideal for both cozy family gatherings and larger social occasions. The land is fully fenced and divided into several paddocks, making it a perfect choice for those looking to start a hobby farm.
Situated on an expansive 26 acres predominantly consisting of pasture, the property provides plenty of room for various agricultural activities. Multiple dams ensure reliable water supplies, and the home is also connected to town water for added ease. Alongside the main house, several outbuildings are available on the property, offering flexible storage options or potential for other uses.
This is a unique opportunity, combining rural charm with modern conveniences. Don’t miss the chance to make this remarkable property your new family retreat.
Roberts Real Estate have obtained all information in this document from sources considered to be reliable; however, we cannot guarantee its accuracy.
Prospective purchasers are advised to carry out their own investigations. All measurements are approximate.

