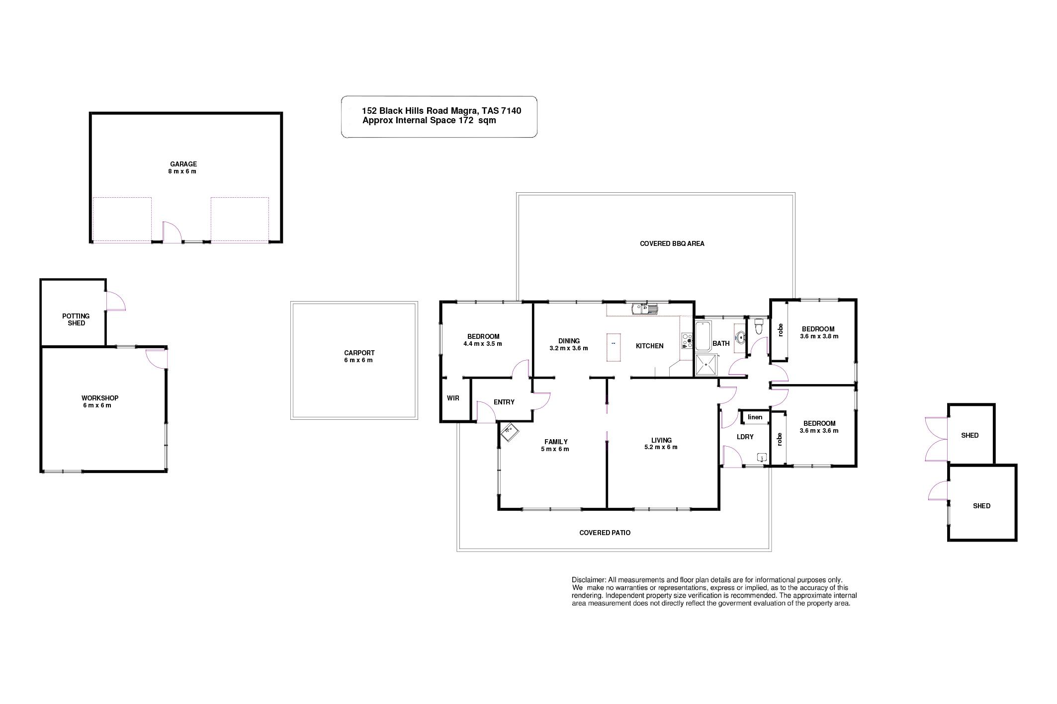
Beautiful 3 Bedroom Home on 3 Acres in a Peaceful Location!
This beautiful three-bedroom brick residence features a generous open-plan living space, complemented by an additional lounge room. Each bedroom comes with built-in wardrobes.
Situated on 3 acres, the property enjoys the advantage of town water and offers a fully fenced, tranquil, and serene environment. The expansive land presents plenty of opportunities for gardening, outdoor pursuits, or simply savoring the peacefulness of nature.
With easy access to local amenities and schools, this property is ideal for families looking for a perfect blend of rural calm and modern convenience.
Seize the opportunity to make this delightful home your personal retreat.
Roberts Real Estate have obtained all information in this document from sources considered to be reliable; however, we cannot guarantee its accuracy.
Prospective purchasers are advised to carry out their own investigations. All measurements are approximate.

