Spacious Family Home with Endless Potential
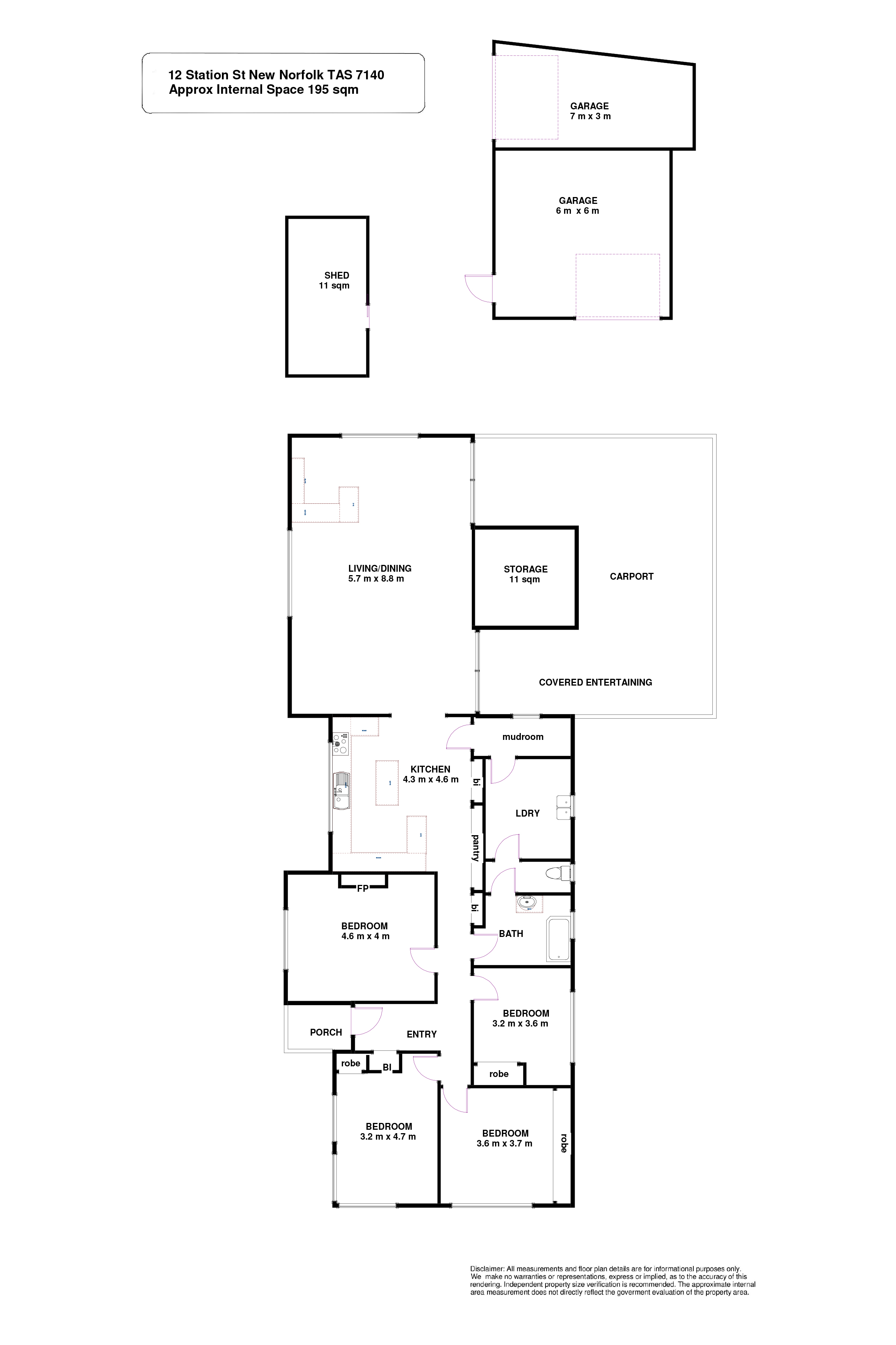
Fully fenced for privacy and security, the level yard offers easy access and plenty of room for families, pets, or future plans. Inside, enjoy the warmth and functionality of a large open-plan living area, a cozy separate loungeroom, and a well-appointed kitchen that’s perfect for entertaining or relaxed family meals.
Step outside to find multiple outbuildings, two garages, and ample space for hobbies, storage, or outdoor activities. The property also presents exciting development potential, with room for unit construction (STCA).
Located in a peaceful, family-friendly area, this home is just moments from the esplanade, local shops, and quality schools – offering a lifestyle of both convenience and serenity.
Whether you’re upsizing, investing, or dreaming of future possibilities, this versatile property ticks all the boxes.
Roberts Real Estate have obtained all information in this document from sources considered to be reliable; however, we cannot guarantee its accuracy.
Prospective purchasers are advised to carry out their own investigations. All measurements are approximate.

