Building Only | Vacant Possession | Prime WIWO Business & Residence - Ulverstone CBD
Secure a Dual-Income Property in the Heart of Town.
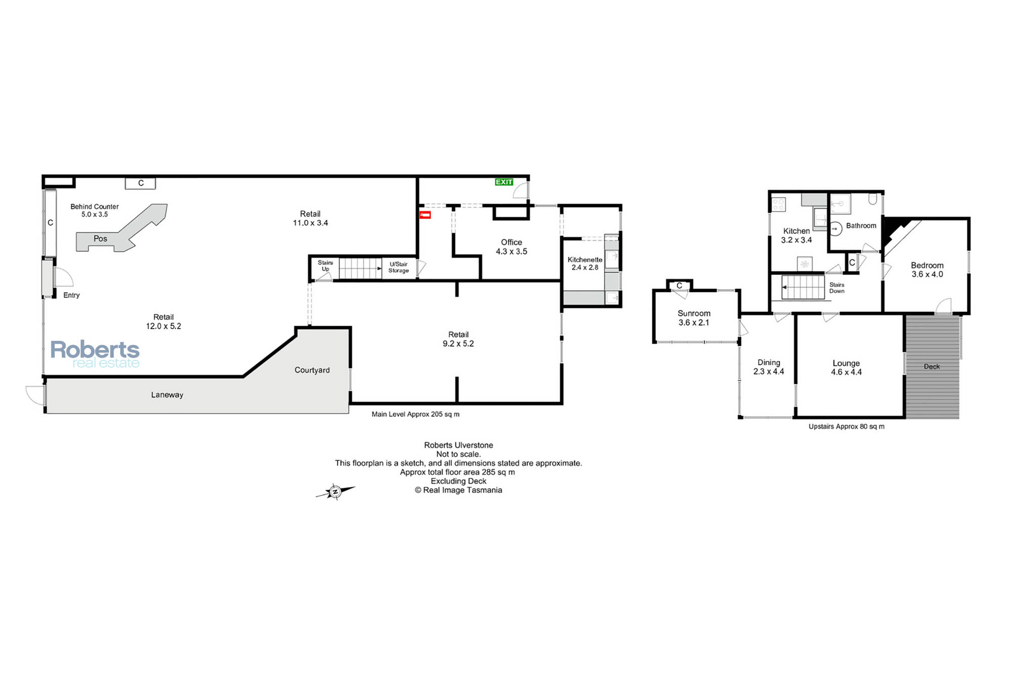
Perfectly positioned in the vibrant centre of Ulverstone’s CBD, this building-only opportunity offered with vacant possession presents an exceptional commercial investment, combining prime retail premises with a private on-site residence.
With a proud local history spanning more than 115 years, the property has long supported a successful and well-established enterprise, benefiting from strong community engagement and consistent performance. The high-exposure Reibey Street frontage delivers excellent visibility and foot traffic, making this an ideal option for investors or owner-occupiers seeking flexibility, immediate usability, or a walk-in, walk-out style asset.
Roberts Real Estate Tasmania proudly presents this tightly held freehold opportunity in one of the North-West Coast’s most sought-after CBD locations.
Investment Highlights:
• Building only – vacant possession
• Approx. 285 m² building area in a prime CBD position
• Prominent street frontage with excellent exposure
• Versatile commercial layout suitable for a range of business uses
• First-floor private one-bedroom residence, ideal for rental income or owner accommodation
• Six private car spaces with convenient rear access
• Strong dual-income potential from commercial and residential components
• Opportunity to re-lease, reposition, or explore future redevelopment
This property represents a secure and flexible dual-income investment, underpinned by location, exposure, and long-term demand. Its combination of commercial presence, residential accommodation, and CBD positioning makes it an attractive proposition for investors and owner-occupiers alike.
Enquire Today.
Further information is available upon request.
Contact Roberts Real Estate to secure this prime Ulverstone CBD investment opportunity.
Roberts Real Estate have obtained all information in this document from sources considered to be reliable; however, we cannot guarantee its accuracy. Prospective purchasers are advised to carry out their own investigations. All measurements are approximate. Please note, photos are indicative of the property only.

