Large Block - Zoned 'General Business'
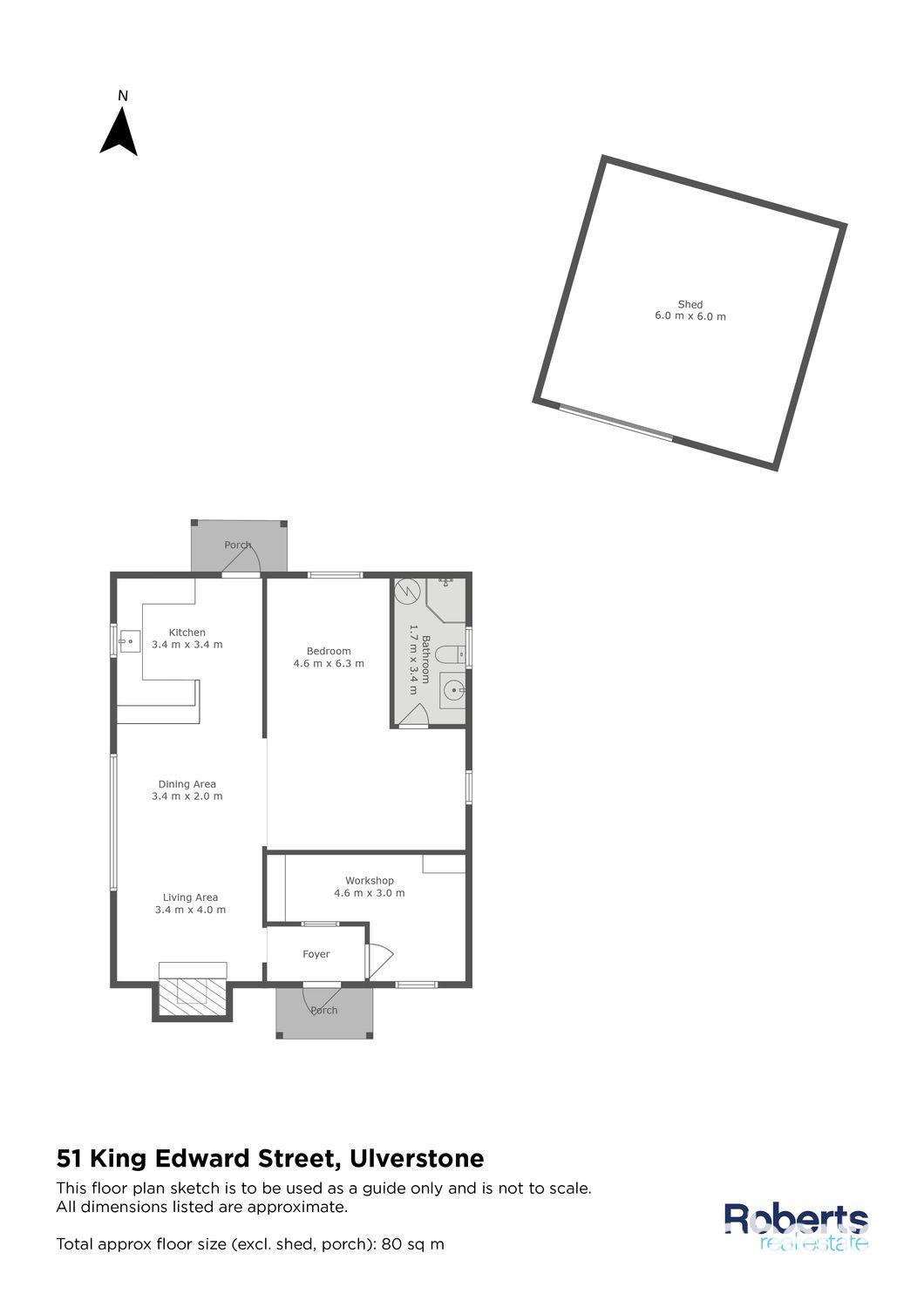
The existing building is rustic and contains a good-sized open space with adjoining bar area, a toilet, a shower and an office area. There is also a large free-standing shed in the back corner of the property.
Here is an opportunity to clear the site and build nice new premises, customised for your own business needs.
Act quickly as this type of property is rarely available.
For more information, please contact Fred Guilbert from Roberts Ulverstone.
“Roberts Real Estate have obtained all information in this document from sources considered to be reliable; however, we cannot guarantee its accuracy. Prospective purchasers are advised to carry out their own investigations. All measurements are approximate. Please note, photos are indicative of the property only.”

